54,900,000 日元
小学 川崎市立王禅寺中央小学 650m
中学 川崎市立王禅寺中央中学 450m
超市 ゆりストアクリエイトSD川崎王禅寺店 840m
・小田急小田原线"新百合丘"车站公共汽车19分
"王禅寺中央中的学校前"停徒歩5分
・东急东横线"Tama plaza"车站公共汽车28分
"琴平下边"停徒歩5分
・东急东横线"Azamino"车站公共汽车25分
"王禅寺中央中的学校前"停徒歩5分
2030年(2030年)横滨市营地铁蓝线延长
在从新百合丘站近的位置的"yonetti王禅寺"附近
新车站打算完成!
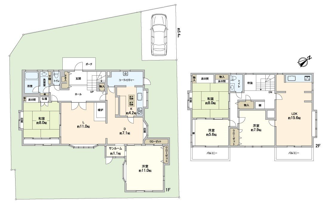
・氟利昂·ville·Homes株式会社施工的进口住宅
作为采用夸耀高的绝热性的"安德森"的木窗扇&复数层玻璃的坚固的2*4施工方法的宅邸
・也能作为厨房被在在1楼.2楼安置的二户式住宅使用的房型构成
・有开放的型壁炉的房子
・土地面积282.06平米(约85.32坪)
・建筑面积191.63平米(约57.96坪)
・由于安静有舒适的低层住宅地"王禅寺第5住宅地区"
・前面道路是西北一侧幅员约6m的公路
・接道間口能有效活用约14.6m的面积,空白
・川崎市立王禅寺中央小学步行9分钟(约650m)
・川崎市立王禅寺中央中学步行6分钟(约450m)
查看评论 收起
地址 神奈川县川崎市麻生区王禅寺东5丁目