32,800,000 日元
小学 埼玉市立宫原小学 870m
中学 埼玉市立宫原中学 710m
公园 诹访公园 360m
医院 Tutujiga丘公园西诊所 610m
其他便利设施1 セブンイレブンさいたま吉野町2丁目店 490m
其他便利设施2 doragguseimusu吉野町2丁目商店 620m
其他便利设施3 大宫吉野町邮局 420m
■ 推荐焦点━━━━━━━━━━━━━━━・・・・・
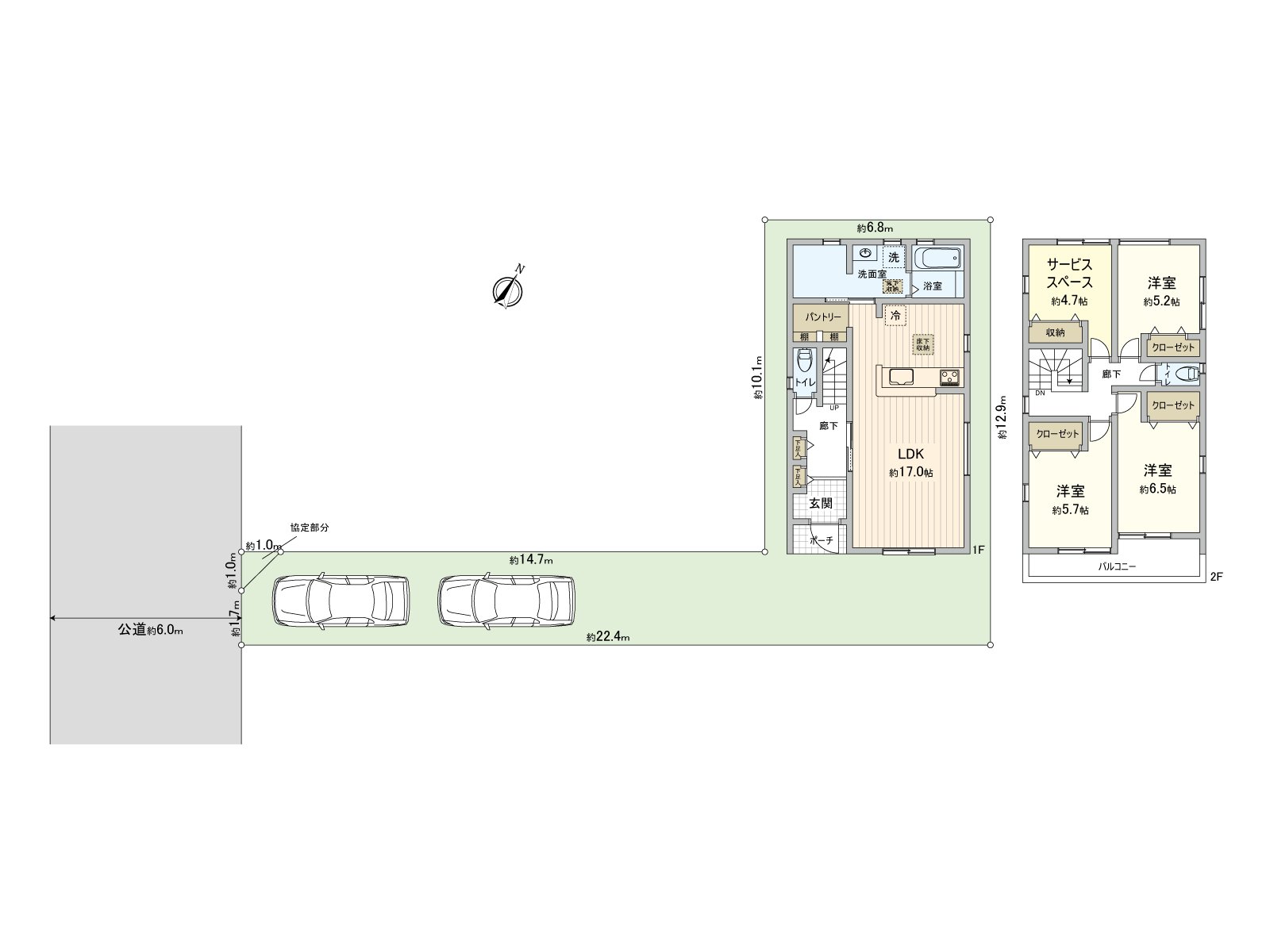
○ 2025年12月完成的新房独栋住宅3SLDK
○ 宽敞的约17.0张塌塌米LDK
○ 与家族的会话兴奋起来的开放式厨房
○ 家务流迹线被想的容易使用的房型
○ 厨房周围一下子剪,整理的餐具室
○ 全居室收纳有(壁橱、地板下边收纳)
○ 2份的停车位有(依靠车型)
○ 有舒适的前面公路幅员约6.0m
○ 周围购物设施充实(便利店·药妆店步行10分钟的范围以内)
■ 设备・设计━━━━━━━━━━━━━━━・・・・・
○ 浴室烘干机
○ 2个地方温水冲洗马桶座
○ 24小时换气
○ 附带TV监视器的内部对讲机
○ 人感觉感应器
■ 周边环境━━━━━━━━━━━━━━━・・・・・
○ 超市"角鱼类大宫商店"步行6分钟(约410m)
○ "7-Eleven埼玉吉野町2丁目商店"步行7分钟(约490m)
○ 诹访公园步行5分钟(约360m)
■ 在找想要的家方面给予帮助的━━━━━・・・
房源的详细、需讨论是如有意向,请跟我们联系。
查看评论 收起
地址 埼玉县埼玉市北区吉野町2丁目