41,900,000 日元
小学 芝川小学 720m
中学 第2东中学 930m
超市 MAMMY MART南中野商店 1270m
公园 看合并纪念池塘公园 620m
医院 早川医院 930m
其他便利设施1 Lawson埼玉南中野商店 720m
其他便利设施2 CAWACHI药品中川商店 990m
■ 推荐焦点━━━━━━━━━━━━━━━・・・・・
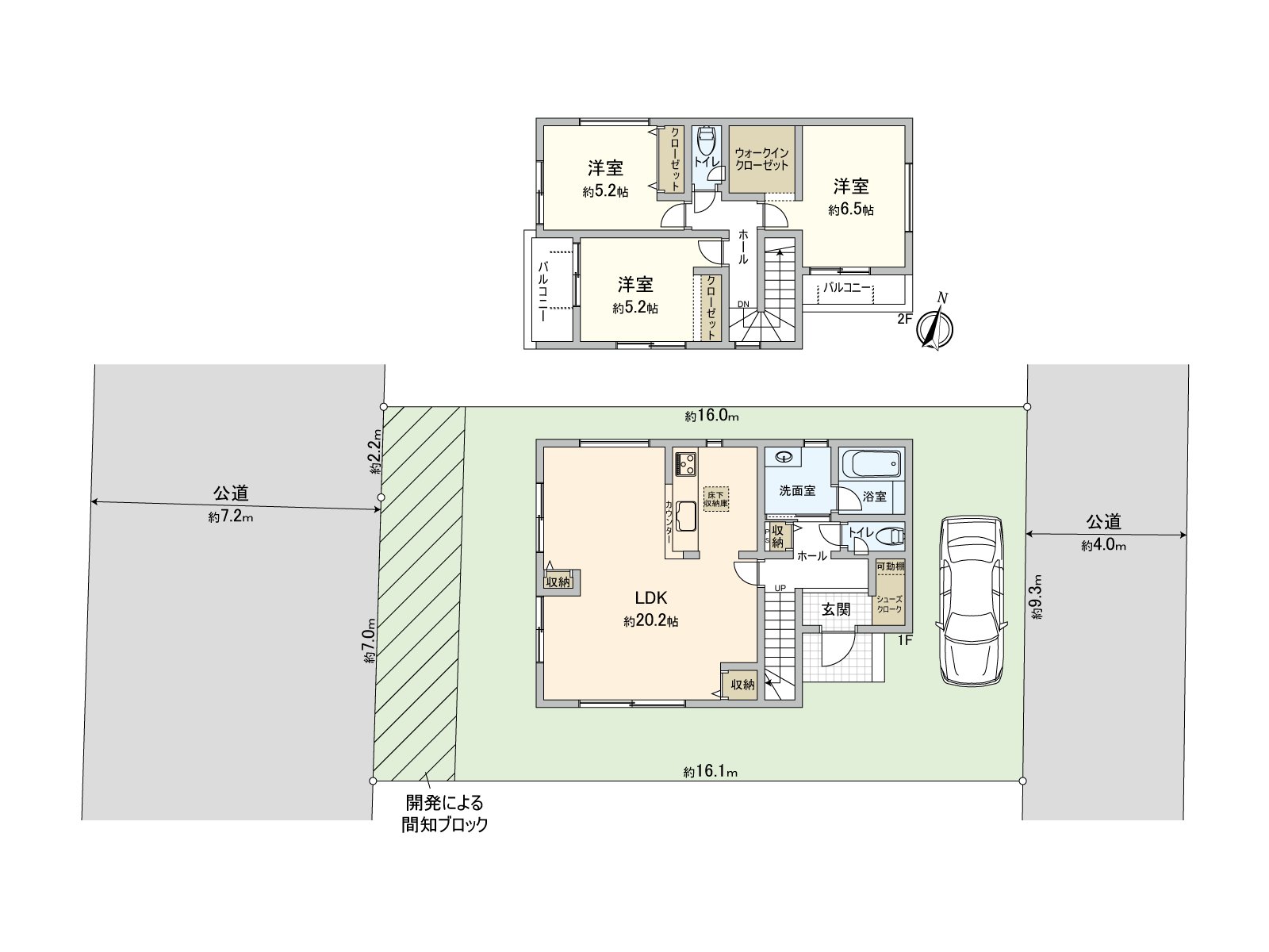
○ 2025年10月完成的新房独栋住宅3LDK
○ 能使用2车站
JR京浜东北线"埼玉新都心"车站步行33分钟
JR京浜东北线"大宫"车站步行34分钟
○ 约20.2张塌塌米宽敞的LDK
○ 客厅能瞭望的开放式厨房
○ 全居室收纳
○ 收纳丰富(步入式衣帽间,地板下边收纳)
○ 清静的住宅区
○ 有舒适的前面公路幅员约7.2m
○ 阳光在南向曝光面阳台良好
○ 停车位有(依靠车型)
查看评论 收起
地址 埼玉县埼玉市见沼区大字中川