天白区梅丘1丁目新房独栋住宅1号楼

独栋住宅

外观 是外观照片。是约21.5张塌塌米LDK和开放式厨房的新房2LDK+2S。用收纳充实,可以停车2台。

客厅 是采光从东面和南侧的窗能够得到的客厅。亮的地板让广泛地感到空间。

客厅 是采光从东面和南侧的窗能够得到的客厅。亮的地板让广泛地感到空间。

厨房 厨房在开放式具有3份煤气灶以及大型洗涤槽,是到客厅继续的开放性的空间。

厨房 厨房在开放式具有3份煤气灶以及大型洗涤槽,是到客厅继续的开放性的空间。

厨房 厨房在开放式具有3份煤气灶以及大型洗涤槽,是到客厅继续的开放性的空间。

厨房 厨房是作为有洗碗机的便利的式样。房源的详细、需讨论到"三井Rehouse原Center"是如有意向,请跟我们联系。

公共汽车 是在南侧有小窗的浴室。在明亮和换气noshiyasusaga特徴,白基调的装修让感到干净的感。

洗脸 房源的详细、需讨论到"三井Rehouse原Center"是如有意向,请跟我们联系。

洗脸 房源的详细、需讨论到"三井Rehouse原Center"是如有意向,请跟我们联系。

厕所 房源的详细、需讨论到"三井Rehouse原Center"是如有意向,请跟我们联系。

厕所 房源的详细、需讨论到"三井Rehouse原Center"是如有意向,请跟我们联系。

阳台 房源的详细、需讨论到"三井Rehouse原Center"是如有意向,请跟我们联系。

西式房间 房源的详细、需讨论到"三井Rehouse原Center"是如有意向,请跟我们联系。

西式房间 房源的详细、需讨论到"三井Rehouse原Center"是如有意向,请跟我们联系。

西式房间 房源的详细、需讨论到"三井Rehouse原Center"是如有意向,请跟我们联系。

西式房间 房源的详细、需讨论到"三井Rehouse原Center"是如有意向,请跟我们联系。

西式房间 房源的详细、需讨论到"三井Rehouse原Center"是如有意向,请跟我们联系。

西式房间 房源的详细、需讨论到"三井Rehouse原Center"是如有意向,请跟我们联系。

西式房间 房源的详细、需讨论到"三井Rehouse原Center"是如有意向,请跟我们联系。

西式房间 房源的详细、需讨论到"三井Rehouse原Center"是如有意向,请跟我们联系。

门口 房源的详细、需讨论到"三井Rehouse原Center"是如有意向,请跟我们联系。

收纳 房源的详细、需讨论到"三井Rehouse原Center"是如有意向,请跟我们联系。

收纳 房源的详细、需讨论到"三井Rehouse原Center"是如有意向,请跟我们联系。

收纳 房源的详细、需讨论到"三井Rehouse原Center"是如有意向,请跟我们联系。

收纳 房源的详细、需讨论到"三井Rehouse原Center"是如有意向,请跟我们联系。

收纳 房源的详细、需讨论到"三井Rehouse原Center"是如有意向,请跟我们联系。

其他 是设备。房源的详细、需讨论到"三井Rehouse原Center"是如有意向,请跟我们联系。

外观 是外观照片。是约21.5张塌塌米LDK和开放式厨房的新房2LDK+2S。用收纳充实,可以停车2台。

含有前面道路的外观 是前面道路的样子。幅员有能力承担,是车辆容易和步行者往来的印象。

含有前面道路的外观 是前面道路的样子。幅员有能力承担,是车辆容易和步行者往来的印象。

植田北小学(约1400m)

植田中学(约1300m)

piago植田商店(约1500m)

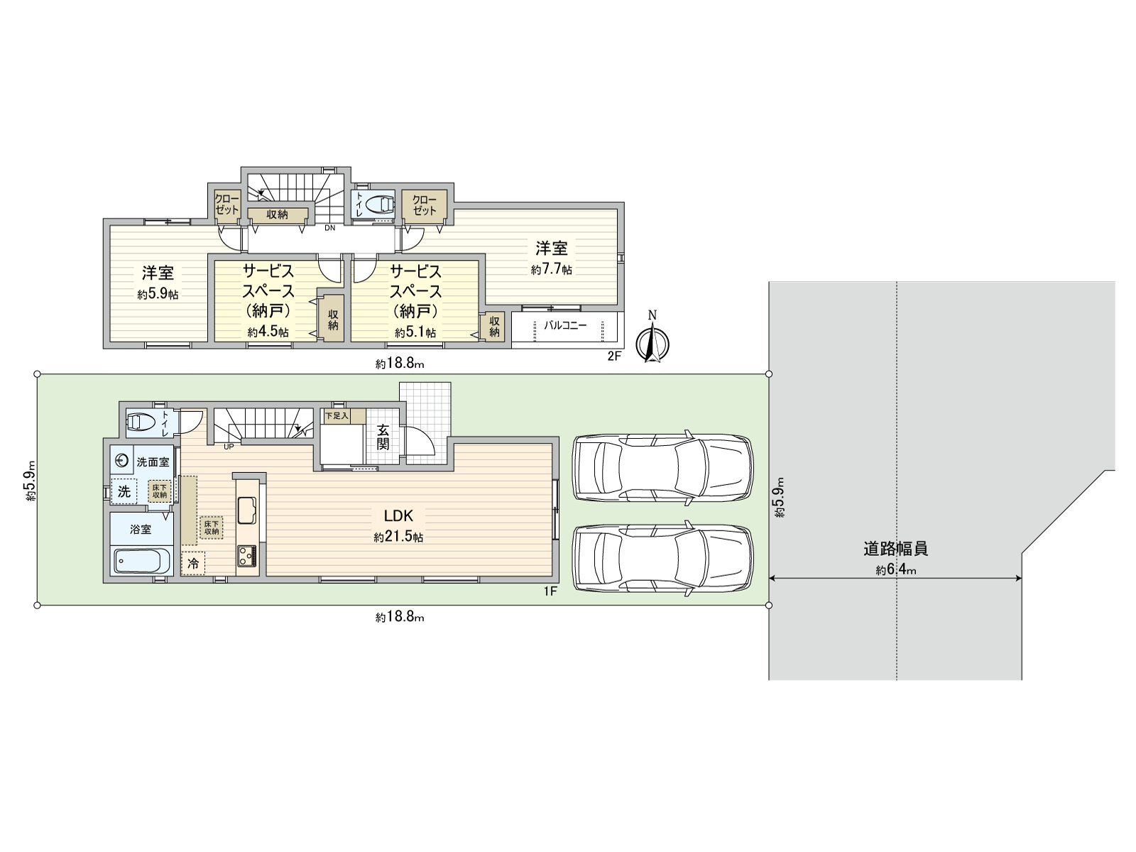
是表示全体房源的版面设计的房型图。约21.5张塌塌米LDK被安置,厨房、洗脸室、浴室的流迹线正在小型解决。收纳也充实。
> 用语集

用语集

推荐

查看评论 收起

周边地图

地址 爱知县名古屋市天白区梅丘1丁目


咨询方式
咨询方式
咨询方式
咨询方式