9,900,000 日元
小学 蜂鸣器小学 790m
中学 蜂鸣器台中学校 760m
公园 万场山公园 150m
医院 naruko田中医院 310m
其他便利设施1 7-Eleven名古屋万场山商店 590m
其他便利设施2 杉药房泷之水商店 260m
■ 推荐焦点━━━━━━━━━━━━━━━・・・・・
○ 地铁樱通线"鸣子北"车站步行14分钟
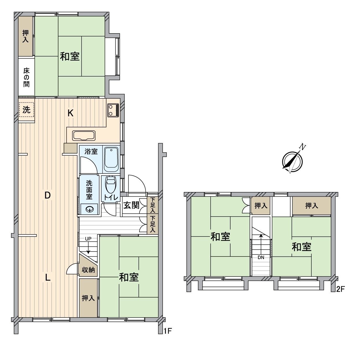
○ 房型4LDK
○ 用地面积约40坪
○ 有院子(约8坪)
○ 停车位1台分有
[关于小学]
关于上学路的指定,请到各学校、教育委员会确认
※本房源是连栋式建筑物(1栋6独栋住宅)。隣接住戸的协议查对再建筑是必要的,变成单独的重建不可。
※除了如上所述建筑面积以外有约26平米的增建未登记部分
(1楼北侧日式房间,厨房,门口)1985年3月增建
※[其他费用]会费:年额18,000日元
查看评论 收起
地址 爱知县名古屋市绿区池上台2丁目