34,800,000 日元
小学 原幸运小学 400m
中学 芦苇田野中间学校 400m
超市 业务超市富士见野上福冈商店 900m
公园 元福冈儿童公园 100m
医院 看清家庭诊所 650m
其他便利设施1 山崎Y店铺泉名上福冈商店 450m
其他便利设施2 全家便利店川越寺尾店 550m
其他便利设施3 看doragguseimusu富士见野清商店 700m
■ 交通━━━━━━━━━━━━━━━・・・・・
○ 东武东上线"上福冈"车站步行19分钟
■ 推荐焦点━━━━━━━━━━━━━━━・・・・・
○ 位于"上福冈"车站步行范围以内
○ 采光、通风在角地良好
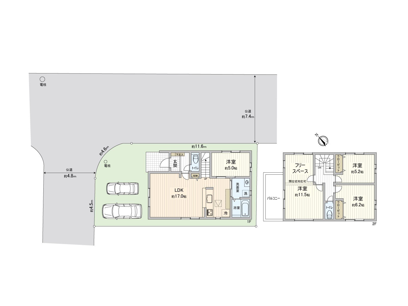
○ 用地面积约107平米(约32坪)
○ 建筑面积约98平米(约29坪)的4LDK
○ LDK是宽敞的约17张塌塌米
○ 有能充分吸干洗的衣物的舒适的阳台
○ 有停车位2台分(出自车型的)
○ 城市煤气、本排水
○ 到购物设施、公园步行范围以内
○ 容易到学区里面的中小学上学的位置
■ 设备・设计━━━━━━━━━━━━━━━・・・・・
○ 开放式组合厨房
○ 内装洗碗机
○ 浴室换气干燥暖气时机
○ 厕所在1.2楼
○ 客厅楼梯
○ 有TV监视器的内部对讲机
■ 周边施设━━━━━━━━━━━━━━━・・・・・
○ 原幸运小学步行5分钟(约400m)
○ 芦苇田野中间学校步行5分钟(约400m)
○ 山崎Y店铺泉名上福冈商店步行6分钟(约450m)
○ Yaoko富士见野大原商店步行9分钟(约650m)
○ 看doragguseimusu富士见野清商店步行9分钟(约700m)
查看评论 收起
地址 埼玉县富士见野市元福冈2丁目