54,900,000 日元
小学 上社小学 400m
中学 上社中学 780m
超市 tachiya高针商店 1400m
公园 平池公园 290m
医院 末永医院 320m
其他便利设施1 Welcia名古屋上社站商店 1350m
其他便利设施2 セブン-イレブン 名古屋上社5丁目店 230m
其他便利设施3 杉药房极乐商店 1320m
■ 推荐焦点━━━━━━━━━━・・・・・
○ 地铁东山线"本乡"车站12分
○ 地铁东山线"上社"车站16分
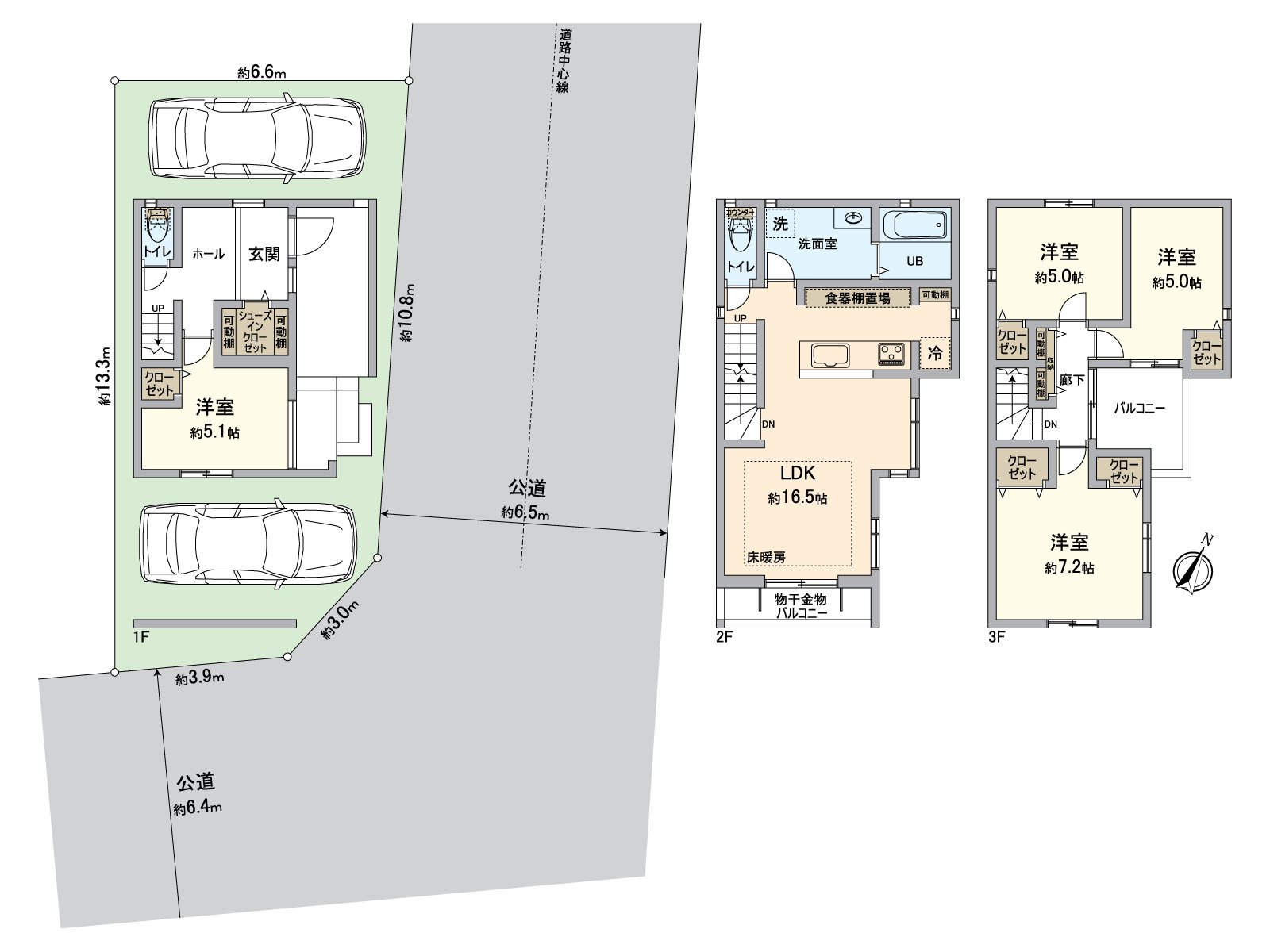
○ 用地面积:77.72平米
○ 建筑面积:121.19平米(含有车库部分12.32平米)
○ 前面道路幅员超过6m的东南角地
○ 是约16.5张塌塌米LDK的4LDK的房型
○ 在客餐厅,有地板暖气
○ 有超过2面各居室的采光,也有收纳
○ 在门口,对走入式鞋柜,3楼走廊部分有收纳,收藏丰富
○ 正设计客厅楼梯,变得容易取得与家族的交流
○ 2台停车场并列可以(依靠车型)
查看评论 收起
地址 爱知县名古屋市名东区社丘3丁目