38,800,000 日元
小学 丰中市立克明小学 820m
中学 丰中市立第5中学 700m
超市 LIFE冈町商店 980m
其他便利设施1 丰中站(阪急宝冢本线) 1070m
其他便利设施2 冈町站(阪急宝冢本线) 800m
其他便利设施3 Lawson丰中山之上町商店 200m
-房源的推荐焦点-
▼位置
・阪急电铁"丰中"车站步行14分钟,"冈町"车站步行10分钟
能使用2车站。
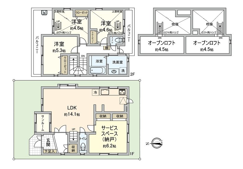
▼建筑物的特徴
・2010年11月築的自由设计住宅
・位于清静的住宅区。
・3LDK+储藏室的房型
・浴室是1818尺寸。
・2楼西式房间有阁楼。
・在全西式房间收纳有
・停车位1台分有(出自车型的)
・地板暖气有(厨房·客厅)
▼翻新内容
・太阳光发电系统搭载大约3.5KW(2013年)
▼周边环境
・LIFE冈町商店约980m
・丰中市立克明小学约820m
・丰中第5中学约700m
■ 在找想要的家方面给予帮助的━━━━━・・・
房源的详细、需讨论是如有意向,请跟我们联系。
查看评论 收起
地址 大阪府丰中市宝山町