Our Site uses cookies to improve your experience on our website. For more details, please read Cookie Policy.
By closing this message or starting to navigate on this website, you agree to our use of cookies.



Nikaido, Kamakura-shi Detached House

Detached House

The appearance [Nikaido, Kamakura-shi Detached House] 2LDK of the 2021 March. It is a location of a 1-minute walk to the bus stop which is accessible to JR Yokosuka Line "Kamakura" station.

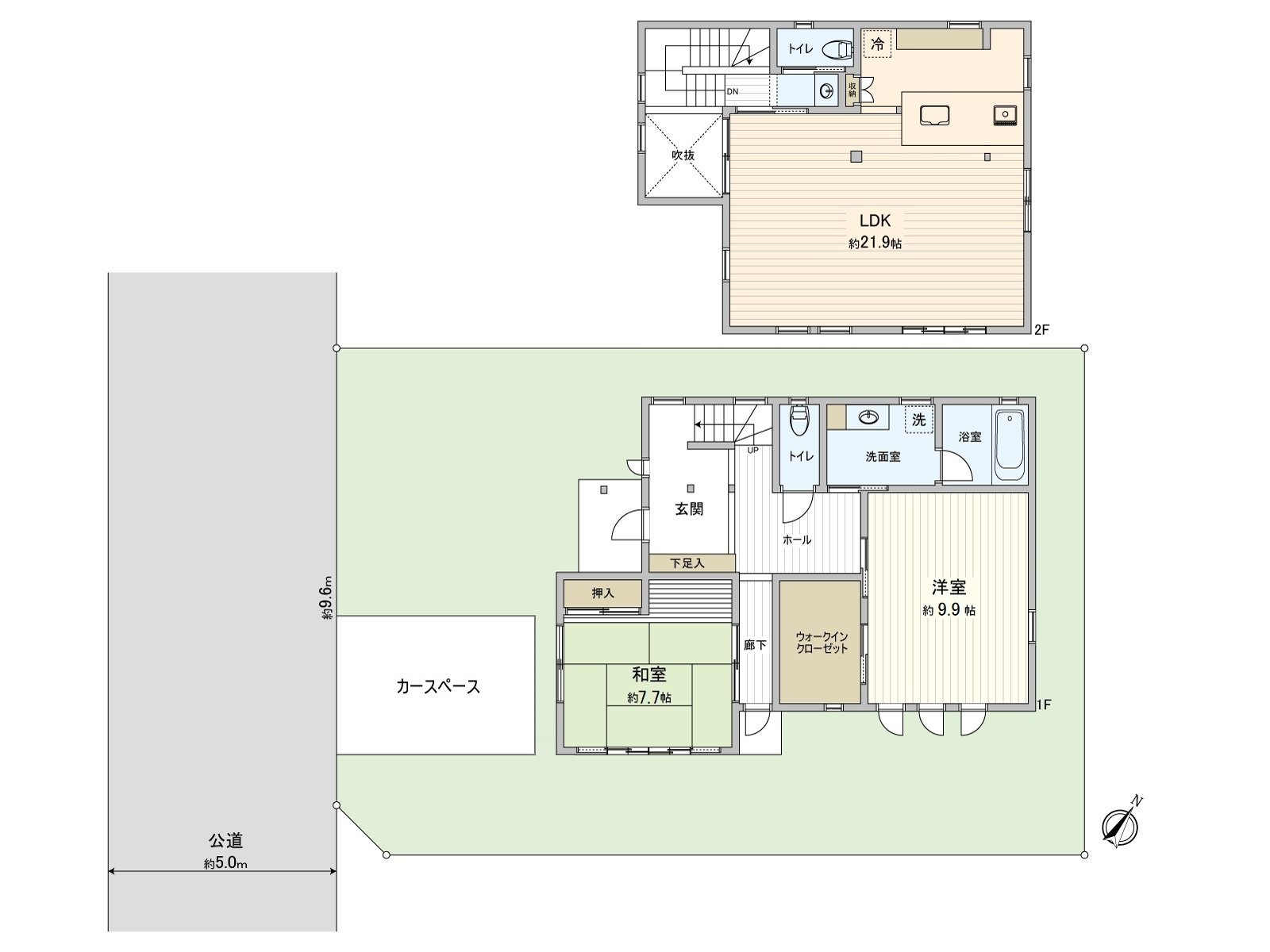
Living [LDK (about 21.9 quires)] The extensive living room that can spend time relaxedly. It is warm interior settled for soft color taste.

Living [LDK (about 21.9 quires)] LDK where families gather is about 21.9 quires of area. Bright sunlight comes in through a window.

Kitchen [kitchen] Island kitchen counter to get the communication with the family during cooking. Unhurried area is secured.

Kitchen [kitchen] An extensive kitchen to be able to enjoy cooking slowly. As storage space is secured well, the big pan or tableware are put in order clearly, too.

Kitchen [kitchen] An IH cooking heater is equipped with. I am easy to care for it and am the specifications that a kitchen is hard to become hot in the summertime.

Kitchen [kitchen] A Center pocket sink is adopted. Water purifier is with one faucet type which is convenient for cooking.

Bus [bathroom] Bathroom where an accent panel of the beautiful woodgraining was adopted. As bathroom ventilation with clothes drying function is established, laundry dries well in a season of the long rain.

Washing face [washing face room] Dresser with a triple mirror is installed. It is provided with storage space under the mirror side and the bowl and can store a hair dryer or cosmetics.

Washing face [washing face room] A washing face room of the area to be able to afford even if I put a washing machine. On the washing machine place, a shelf to be able to put detergent bottles is established.

Restroom [restroom/1st] It is with a toilet bowl with warm water flush system for washing user and is available comfortably every day. The window which I am easy to ventilate includes it.

Restroom [restroom/2nd floor] The tankless restroom which I am easy to clean. A toilet bowl with warm water flush system for washing user available cleanly includes it.

The room [Western-style room (about 9.9 quires)] The bright Western-style room which lighting can see from the two directions. As it leads to a walk-in closet, the room is cleared up clearly, too.

Storing [walk-in closet] Because there is spacious space, the walk-in closet can finish outfit on the spot and is easy to do the selection of clothes.

Storing [walk-in closet] The walk-in closet is the area that can set up cabinets. Let alone clothes and an accessory, it is convenient for the storing such as a suitcase or seasonal household appliances.

The entrance [the entrance] Area with a space is secured so as to just put it by stroller. It is the entrance with a feeling of opening.

The entrance [the entrance] The extensive entrance space that is easy to dress itself. As the upper part is a colonnade, Hikari comes in through a top light.

The entrance [the entrance] A door of the color taste to calm down meets a family. The lower tentative marriage that a lot of shoes begin is established at the entrance.

Parking lot [car space] Car space is established for one (Depending on car type). The front road is Southwest side width about 5m.

The appearance

The appearance

The appearance to include front road

The appearance to include front road

The Kamakura Station east exit (JR) (about 1,620m) Direct is accessible to plural accessible lines possible "big boat" station. It is convenient for commuting, attending school, outing to Tokyo.

Motomachi Union Kamakura store (about 1,440m)

FamilyMart Yukinoshita, Kamakura store (about 570m)

Kiyokawa Hospital (about 1,180m)

The Kamakura City second elementary school (about 170m)

The Kamakura City second junior high school (about 730m)

A house with space that area 7.7 quires of all rooms or more is secured. I seem to be able to spend time in family all of you at ease.
> Click for glossary

Glossary

Recommended

Read More Read Less

Surrounding map

Address Nikaido, Kamakura-shi, Kanagawa > GoogleMap


Inquiry
Inquiry
Inquiry
Inquiry