Our Site uses cookies to improve your experience on our website. For more details, please read Cookie Policy.
By closing this message or starting to navigate on this website, you agree to our use of cookies.
This page is translated using machine translation. Please note that the content may not be 100% accurate.
98,000,000 JPY
Elementary school Osaka Municipal Toyosaki East elementary school 660m
Junior high school Osaka Municipal Xinfeng Sakinaka studies school 790m
Supermarket Six Sandy sky 300m
Hospital Tazuke interest style meeting medicine research institute Kitano Hospital 1,100m
Other facilities 1 Lawson 7, Tenjinbashi store 110m
Other facilities 2 FamilyMart sky six North shop 110m
Other facilities 3 Osaka Honjo post office 430m
Each room cross/wall papering substitute Kitchen replaced Bathroom replaced Restroom replaced Dresser replaced Floor replaced Door replaced
Interior (each room cross, floor, housing part, air-conditioner one setting etc.) (March, 2026) plan Place equipped with a water supply (kitchen, bathroom, restroom, washroom, washing Bakery replaced) (March, 2026) plan
■Recommended
○ The plural use along the line is possible
・Hankyu Senri Sen, Osaka Metro Tanimachi Line, Osaka Metro Sakaisuji Line
A 4-minute walk from "Tenjinbashi line 6 chome" station
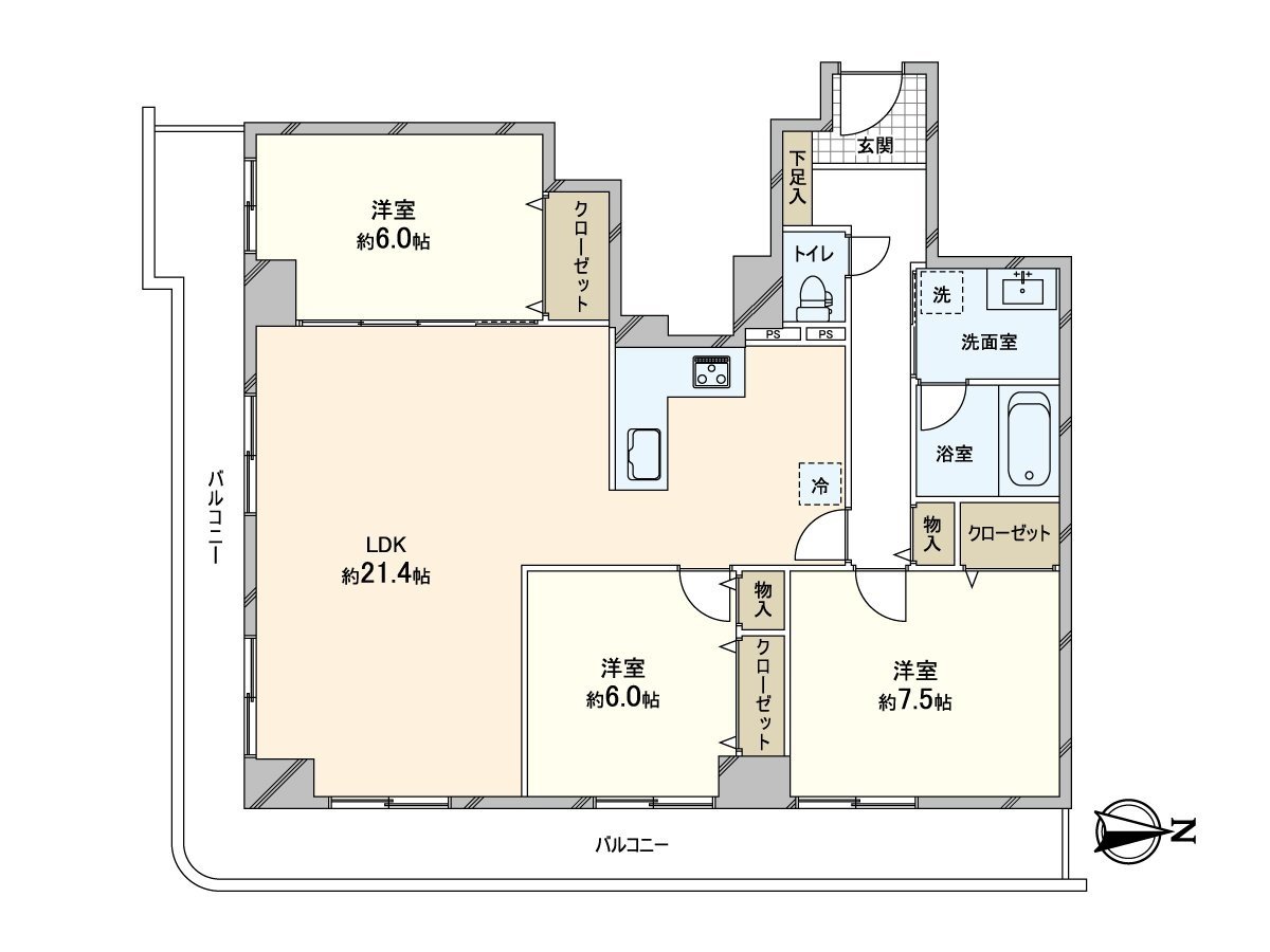
○ 93.15 square meters of exclusive area, Plan of 3LDK
○ I take you, and exposure to the sun is good because of balcony - (East, South)
○ Southeast corner unit
○ A view is good because of 30-story the 25th-floor part
○ About 21.4 tatami that LDK where families gathered was extensive
○ Island kitchen counter system kitchen (with a dishwasher) which enjoys a conversation
○ Bathroom dryer, high temperature adding some hot water to a cup of strong green tea bathroom with
○ There is all rooms storing
○ Delivery box available
■Reform contents (going to be completed in the middle of March, 2026)
○ Kitchen replaced
○ Bathroom replaced
○ Dresser replaced
○ Restroom replaced
○ Flooring-clad substitute (LDK, Western-style room)
○ Stone tiling substitute (washing face room, restroom)
○ I put a cross and change it (each room)
○ Housing part replaced (each room)
○ Lower tentative marriage setting
○ Lighting equipment setting
○ Screen door re-covering
○ Air-conditioner one setting (LDK)
○ Curtain rail replaced
○ House cleaning
Read More Read Less