Our Site uses cookies to improve your experience on our website. For more details, please read Cookie Policy.
By closing this message or starting to navigate on this website, you agree to our use of cookies.
This page is translated using machine translation. Please note that the content may not be 100% accurate.
59,800,000 JPY
Elementary school Kawaguchi City Iizuka Elementary School 350m
Junior high school Kawaguchi City West junior high school 580m
Park 仙太郎第 2 park 780m
Hospital Iwai clinic 280m
Other facilities 1 7-Eleven Kawaguchihara-cho store 140m
Other facilities 2 Drug Store SEIMS Haramachi store 390m
-Recommended - of the Properties
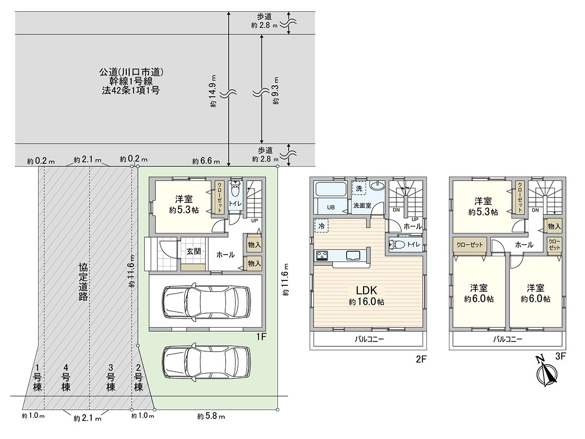
▼Location
・A 15-minute walk from JR Keihin-Tohoku Line "Kawaguchi" station
・Front road 6m or more
▼Characteristics of the building
・March, 2026 completion planned Newly-Built Detached House 3-story bldg.
・Possible two car space (Depending on car type)
▼Characteristics of the room
・Extensive LDK about 16 quires
▼Facilities
・System kitchen with dishwasher, water purifier
・Floor lower storing
・Bathroom dryer
・Intercom with TV monitor
・24 hours ventilation system
▼Surrounding environment
・Iizuka Elementary School/about 350m (a 5-minute walk)
・West junior high school/about 580m (an 8-minute walk)
・OK Kawaguchi shop/about 780m (a 10-minute walk)
・7-Eleven Kawaguchihara-cho store/about 140m (a 2-minute walk)
・Drug Store SEIMS Haramachi store/about 390m (a 5-minute walk)
・Iwai clinic/about 280m (a 4-minute walk)
・仙太郎第 2 park/about 780m (a 10-minute walk)
■
We help you find a property that meets your needs
For property details or inquiries, please feel free to contact us.
Read More Read Less