Our Site uses cookies to improve your experience on our website. For more details, please read Cookie Policy.
By closing this message or starting to navigate on this website, you agree to our use of cookies.
This page is translated using machine translation. Please note that the content may not be 100% accurate.
72,900,000 JPY
Elementary school Yokohama City Edaminami elementary school 550m
Junior high school Yokohama City Edaminami junior high school 500m
Supermarket ハーモス Eda 1,300m
Park Tamukai, Izumi Park 180m
Other facilities 1 FamilyMart 4, Edanishi store 630m
Other facilities 2 Create S D Edaminami store 1,000m
■Access
* An 18-minute walk from Tokyu Denentoshi Line "Ichigao" station
* A 19-minute walk from Yokohama Shiei Subway Green Line line "hill of the Tsuzuki contact" station
■Recommended ━━━━━━━━━━━━ ...
* The end of November, 2025 completion
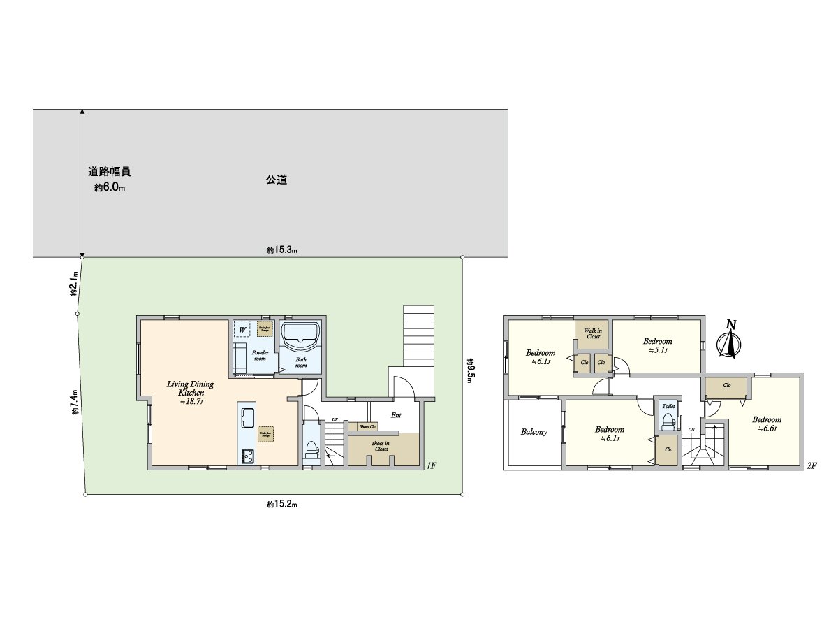
* Land area: 146.63 square meters
* Total floor area: 105.98 square meters
* There is one 4LDK+ car space in the Plan (Depending on car type)
* It is about 15.3m Abutting road in the north side about 6m public road
* LDK of about 18.7 quires of space
* There are shoe closet, a walk-in closet
* The 2nd floor terrace has good view that there are about 2.2m in depth, about 6.2 square meters in
* Convenient meeting system kitchen
* A washing face room is near the kitchen, and a housework line of flow is good
* In bathroom, bathroom ventilation with clothes drying function is with it
* Kitchen in the kitchen with built-in water purifier, dishwasher
* A toilet is a shower toilet of INAX
* Intercom with the television monitor
* There is a park in the neighborhood
* The residential area which is quiet because of Category 1 Low-Rise Exclusive Residential District
Read More Read Less