Our Site uses cookies to improve your experience on our website. For more details, please read Cookie Policy.
By closing this message or starting to navigate on this website, you agree to our use of cookies.
This page is translated using machine translation. Please note that the content may not be 100% accurate.
135,800,000 日本円
小学校 世田谷区立若林小学校 530m
小学校 世田谷区立代沢小学校 1020m
中学校 世田谷区立世田谷中学校 840m
公園 世田谷区立羽根木公園 1300m
その他利便施設1 若林駅(東急電鉄 世田谷線) 680m
その他利便施設2 世田谷代田駅(小田急 小田原線) 930m
その他利便施設3 セブンイレブン若林陸橋店 220m
■ アクセス・ランドスケープ ━━━━━━━━━━━━━━━・・・・・
○ 2駅2路線利用可能
○ 世田谷線「若林」駅 徒歩10分
○ 小田急線「世田谷代田」駅 徒歩12分
■ 特徴 ━━━━━━━━━━━━━━━・・・・・
○ 第一種中高層住居専用地域の閑静な住宅街
○ 2013年(平成25年)7月築
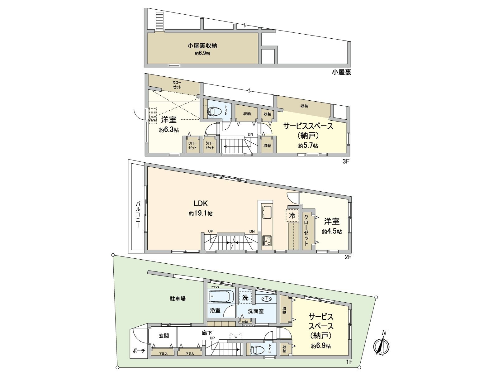
○ 約19.1帖の広々としたLDK
○ カースペース(1台分)※車種による
○ 全洋室に収納スペースあり
○ 6.9帖の広さの屋根裏収納あり
○ 環七通りや永福インターが近く、カーアクセス良好
■ リフォーム内容(2026年2月完了)━━━━━・・・・・
○ 全居室クロス張替え
○ 外壁塗装
○ 全室内・窓まわり、水廻りハウスクリーニング
■ ご希望の住まい探しをお手伝いします ━━━━・・・・
日当たりや間取りなど、一度現地をご見学のうえご検討ください。その他、物件の詳細・ご相談はお気軽にお問い合わせください
コメントを見る コメントを閉じる