Our Site uses cookies to improve your experience on our website. For more details, please read Cookie Policy.
By closing this message or starting to navigate on this website, you agree to our use of cookies.
This page is translated using machine translation. Please note that the content may not be 100% accurate.
128,000,000 日本円
スーパー マルエツプチ西新宿6丁目店 290m
公園 淀橋けやきばし公園 180m
その他利便施設1 セブンイレブン西新宿5丁目中央店 180m
その他利便施設2 ドラッグセイムス西新宿6丁目店 240m
-物件のおすすめポイント-
▼立地
・都営大江戸線「西新宿五丁目」駅 徒歩4分
・都営大江戸線「都庁前」駅 徒歩8分
・東京メトロ丸ノ内線「西新宿」駅 徒歩12分
▼特徴
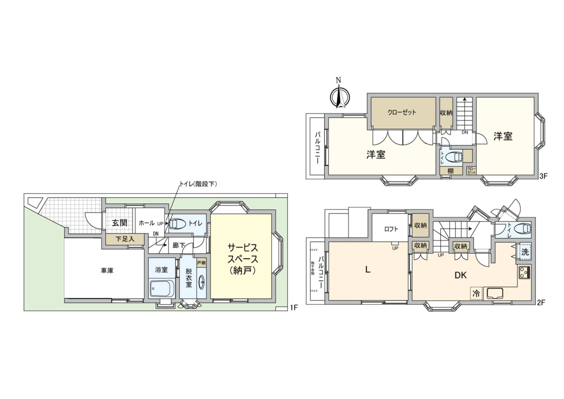
・建物面積95.86平米の2SLDK
・整理整頓がしやすい収納豊富な間取り
・リビング横には様々な使い方ができるロフト
・作業スペースが広いL字型キッチン
・トイレ3箇所(各階に有)で朝の身支度や来客時にも安心の快適動線
・浴室に窓があり換気良好
・車庫付きで雨の日も安心の駐車環境(※車種による)
▼周辺環境
・徒歩圏内に生活利便施設が整う環境
・静かな住宅街で落ち着いた暮らしが可能
■ ご希望の住まい探しをお手伝いします ━━━━━・・・
物件の詳細・ご相談はお気軽にお問い合わせください。
コメントを見る コメントを閉じる