49,800,000 日圓
小學 川崎市立千代ka山岡小學 670m
中學 川崎市立錢程中學 1150m
超市 你Coop千代ka山岡商店 1060m
公園 千代ka山岡第1公園 130m
醫院 島崎內科醫院 350m
其他便利設施1 百合丘站(小田急線) 1480m
其他便利設施2 小田急線"新百合丘站"南口 1820m
其他便利設施3 セブンイレブン川崎麻生千代ヶ丘6丁目店 290m
■ 交通指南━━━━━━━━━━━━━━・・・・・
○ 小田急線"百合丘"車站步行19分鐘
0 小田急線"新百合丘"車站公共汽車11分"千代ka山岡7丁目"停歩2分
■ 推薦重點━━━━━━━━━━━━━━・・・・・
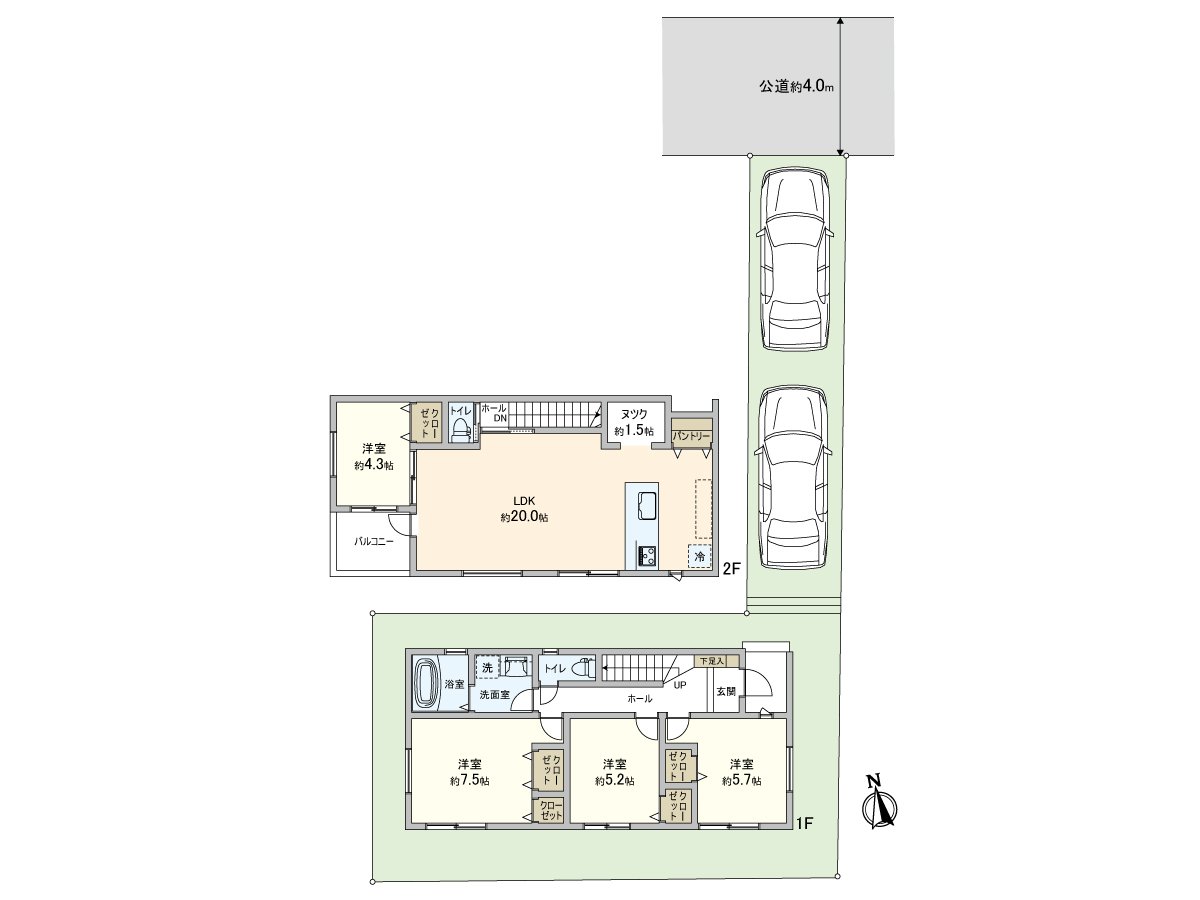
○ 2025年11月上旬完成的新建透天房
○ 關於第一類低層住宅專用區,是閒靜的住宅區。
○ 陽光、通風在全居室朝南良好的3SLDK
○ 約20.0張塌塌米2樓LDK在斜面天花板是開放感覺◎
○ 與家族的會話興奮起來的開放式廚房使用
0 有在多目的在廚房旁邊可以使用的約1.5張塌塌米榻榻米neuk
○ 在洗臉室衣服烘乾機設置
0 能進出客廳和西式房間的2WAY陽台
0 有儲藏室以及餐具室,行李一下子剪,整理。
0 能停車2台(出自車型的)
○ 便於步行範圍以內擁有購物設施以及公園的生活的居住環境
■ 周邊環境━━━━━━━━━━━━━━━・・・・・
○ 千代ka山岡小學約670m
○ 錢程中學約1,150m
○ 7-Eleven川崎麻生千代ka山岡6丁目商店約290m
○ Create S·D川崎千代ka山岡商店約330m
○ 你Coop千代ka山岡商店約1,060m
0 千代ka山岡第1公園約130m
0 島崎內科醫院約350m
0 川崎千代ka山岡郵局約400m
查看評論 收起