56,800,000 日圓
小學 川崎市立東柿生小學 320m
中學 川崎市立柿生中學 1720m
超市 三和町田三輪店 1290m
其他便利設施1 柿生站南口(小田急小田原線) 2120m
其他便利設施2 Lawson·THREE F下麻生商店 390m
其他便利設施3 HAC藥品川崎下麻生商店 560m
■交通指南
━━━━━━・・・・・
○小田急線"柿生"車站公共汽車14分
"東柿生小學"步行6分鐘(約450m)
■推薦重點
━━━━━━・・・・・
02026年4月中旬完成計劃的新建透天房
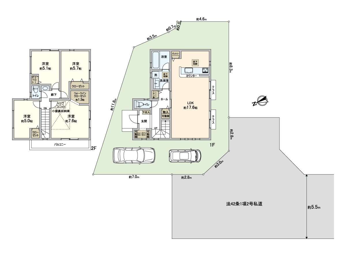
0通風用全居室2面采光明亮地良好的4LDK
0約17.6張塌塌米寬敞的LDK
0采用與家族的會話興奮起來的開放式廚房
0收藏嵌入式衣櫃以及小房間背後收納,餐具室,充實
0門口一下子在步入式鞋櫃剪,整理。
02樓也有盥洗台
0到小學步行10分鐘以內。
0步行範圍以內擁有綠大量購物設施的容易生活的居住環境
■周邊設施
━━━━━・・・・・
○東柿生小學:步行4分鐘(約320m)
○柿生中學:步行22分鐘(約1,720m)
○Lawson·THREE F下麻生商店:步行5分鐘(約390m)
○HAC藥品下麻生商店:步行7分鐘(約560m)
○業務超市上麻生商店:步行11分鐘(約810m)
○超市三和町田三輪店:步行17分鐘(約1,290m)
0川崎東柿生郵局:步行3分鐘(約200m)
○達磨內科、內窺鏡診所 :步行8分鐘(約610m)
查看評論 收起