41,900,000 日圓
小學 芝川小學 720m
中學 第2東中學 930m
超市 MAMMY MART南中野商店 1270m
公園 看合併紀念池塘公園 620m
醫院 早川醫院 930m
其他便利設施1 Lawson埼玉南中野商店 720m
其他便利設施2 CAWACHI藥品中川商店 990m
■ 推薦重點━━━━━━━━━━━━━━━・・・・・
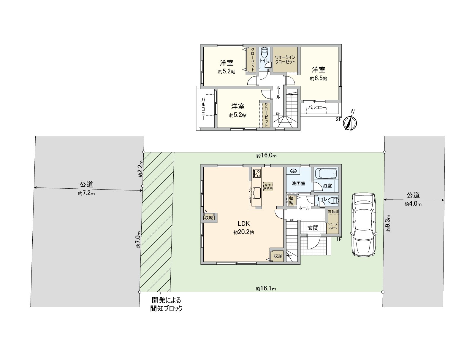
○ 2025年10月完成的新建透天房3LDK
○ 能使用2車站
JR京浜東北線"埼玉新都心"車站步行33分鐘
JR京浜東北線"大宮"車站步行34分鐘
○ 約20.2張塌塌米寬敞的LDK
○ 客廳能瞭望的開放式廚房
○ 全居室收納
○ 收納豐富(嵌入式衣櫃,地板下邊收納)
○ 閒靜的住宅區
○ 有舒適的前面公路幅員約7.2m
○ 陽光在南向曝光面陽台良好
○ 停車位有(依靠車型)
查看評論 收起