32,800,000 日圓
小學 松戶市立八崎小學 900m
中學 松戶市立第3中學 310m
公園 馬橋第2公園 70m
其他便利設施1 馬橋站(JR東日本常磐線) 640m
其他便利設施2 馬橋站(流鐵流山線) 640m
其他便利設施3 微型商城二木 620m
-房屋的推薦重點-
▼位置
・ JR千代田、常盤緩行線/流鐵流山線"馬橋"車站步行8分鐘
▼Mansion的特徴
・無償地可以使用用地裡面的停車場(有1台分鐘、車型限制)。
・24小時安全系統
・保護舒適的生活的防盜門
・不在時,也能收到行李的宅配保管櫃
・可飼養寵物(有規定)
▼房間的特徴
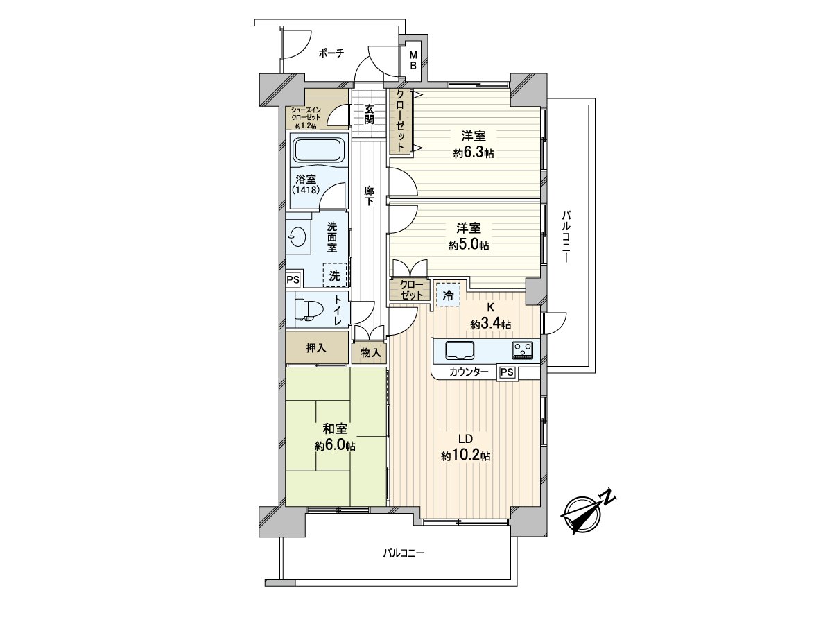
・私人使用面積:70.71平方公尺的3LDK
・向頂樓邊間,東南有,陽光良好
・有開放感覺的風景
・通風在兩面派陽台良好
・與家族的會話興奮起來的開放式廚房
・也便於雨的日的洗衣的浴室烘乾機
・各居室收納,SIC約1.2張塌塌米和收納豐富
▼周邊環境
・TAIRAYA馬橋商店……約550m
・7-Eleven馬橋美人店……約140m
■ 在找想要的家方面給予幫助的━━━━━・・・
房屋的詳細、需討論是如感興趣,歡迎請隨時聯繫我們。
查看評論 收起