29,990,000 日圓
小學 橫濱市立白根小學 950m
中學 橫濱市立上白根北中學 1280m
超市 Big-A橫濱中白根商店 380m
公園 白根五丁歩公園 90m
醫院 HASEGAWA內科診所 280m
其他便利設施1 全家便利店新井町商店 170m
其他便利設施2 7-Eleven橫濱新井町商店 180m
其他便利設施3 HAC藥品中白根商店 30m
全室地板/壁紙的換貼 流理台(廚房)更換 浴室更換 廁所更換 盥洗台交換 地板更換 熱水器交換 門交換
計劃內裝(全室地板,地板,牆,門,照明器具交換,配電板交換,suitchikonse)(2025年10月) , 計劃水運轉(供廚房,浴室,廁所,洗手間,熱水供應器,洗衣使用的防水洗衣機底座)(2025年10月)
■ 推薦重點━━━━━━━━━━━━━・・・・・
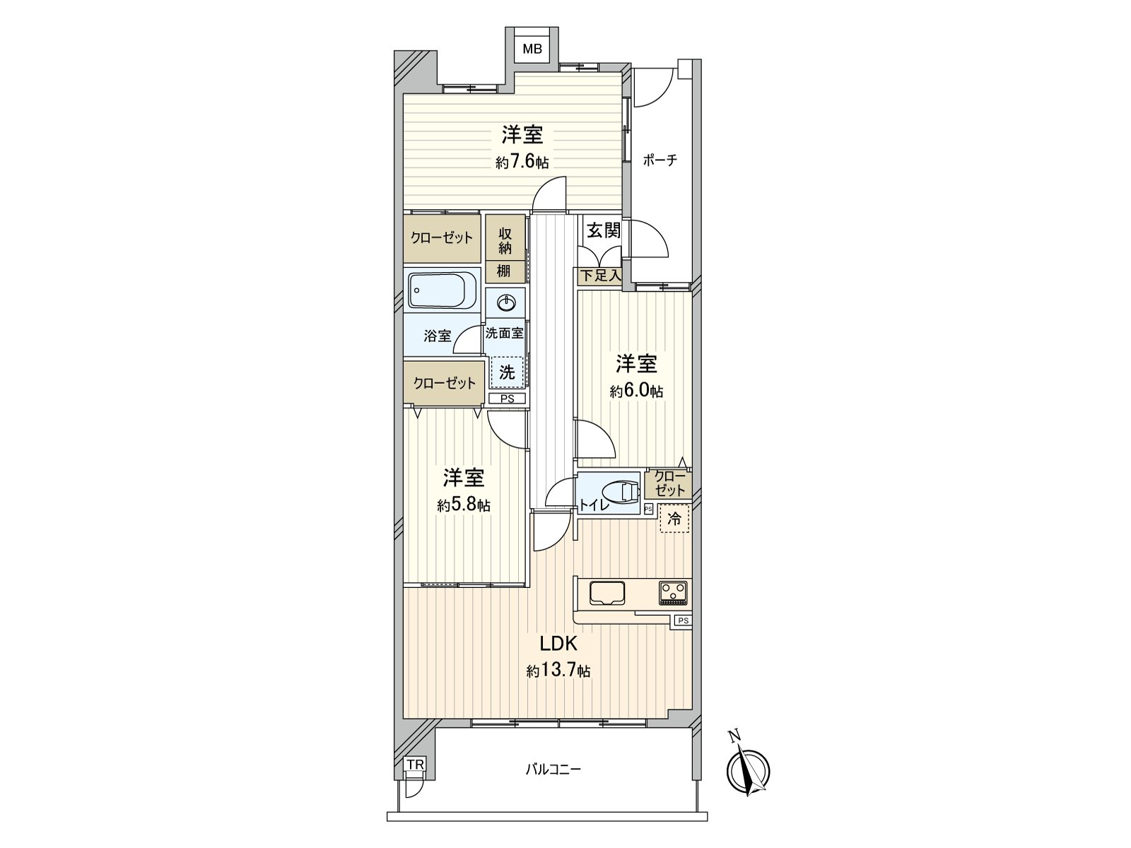
○ 支持室內全面Flat的無障礙的全部電化住戸
○ 陽光在朝南西良好
○ 寵物飼養可(有飼養細則)
■ 設備、式樣━━━━━━━━━━━━━━━・・・・・
○ 在全居室豐富的存儲空間
○ 與家族的會話興奮起來的開放式廚房
○ 浴室烘乾機
○ 食器洗乾燥機
○ 宅配保管櫃
○ 防盜門管理
■ 翻新內容(2025年10月上旬完畢)━━・・・・・
・ 組合廚房交換
・ 整體衛浴交換
・ 盥洗台交換
・ 廁所更換
・ Cross,地板張替
・ 門交換
・ 照明器具設置
・ House清洗
■ 房屋參觀隨便是━━━━━━━━━━━━・・・・・
是中白根4丁目的Mansion的介紹。
因為湊齊房屋的詳細的資料所以
在如有希望用電子郵件發出來的形式或者免付費專線
請和三井Rehouse二俁川Center聯絡。
發自心裡等候來自各位的諮詢。
查看評論 收起