47,800,000 日圓
小學 橫濱市立御岳台小學 320m
中學 橫濱市立御岳台中學 770m
公園 橘台第2公園 60m
醫院 橘台診所 390m
其他便利設施1 MINISTOP綠葉橘台商店 190m
其他便利設施2 SUNDRUG橘台商店 160m
其他便利設施3 業務超市青葉台商店 750m
-房屋的推薦重點-
▼位置
・東急田園都市線"青葉台"車站
公共汽車9分"御岳台小學下邊"停歩3分
▼建築物的特徴
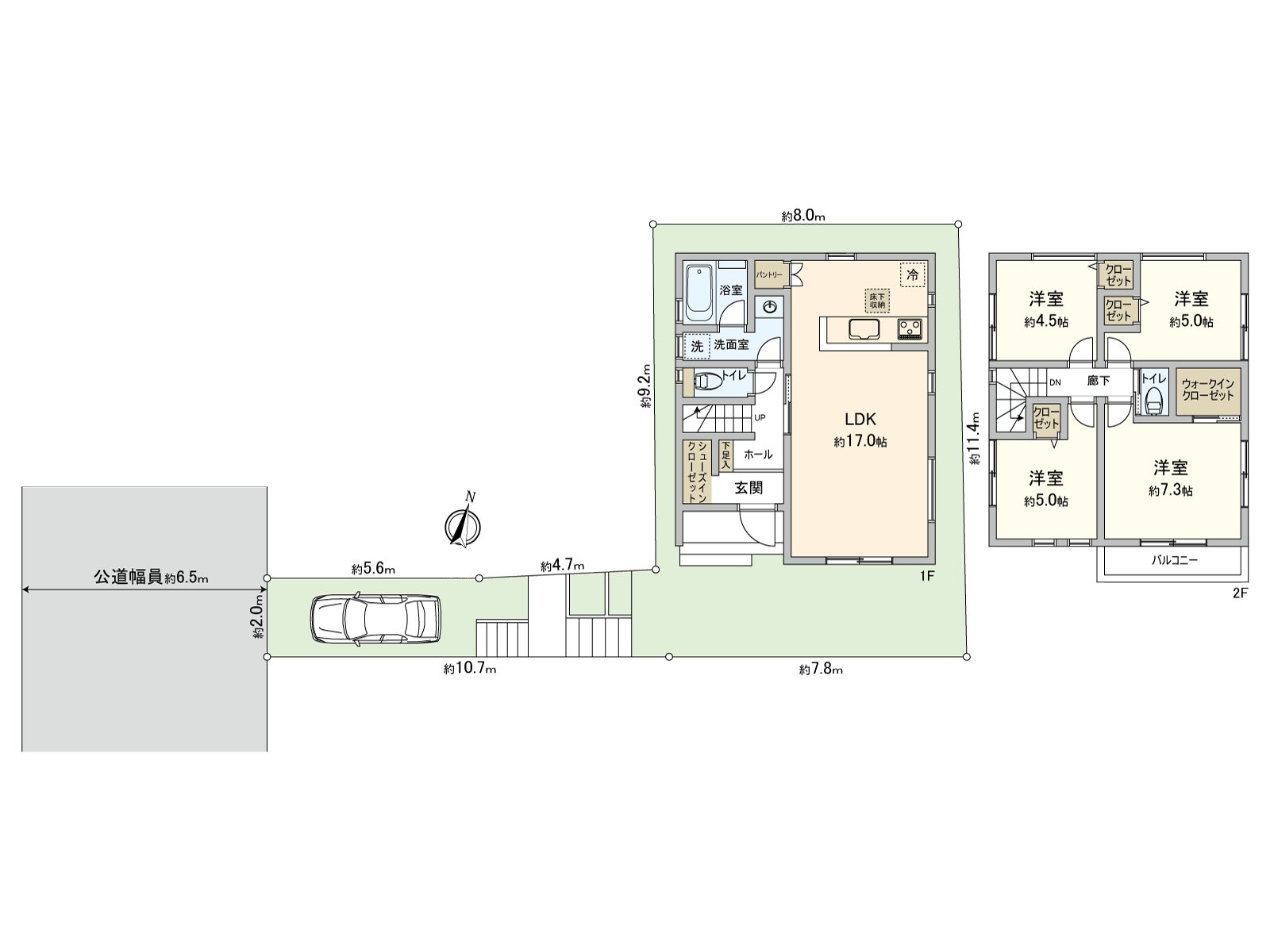
・2026年8月完成計劃的新建透天房
・土地面積115.56平方公尺,建築面積91.91平方公尺
・停車位1台分鐘(有出自車型的限制)
・小學以及公園不久也適合育兒的居住環境
▼房間的特徴
・有超過2面所有房間的采光,通風良好
・WIC或者SIC等的收藏豐富
・光照好的朝南的陽台
▼設備
・有來客時便利的監視器的內部對講機
・有凈水器,洗碗機的組合廚房
・不問氣候,洗衣成為可能的浴室暖氣烘乾機
・斷熱效果的高的復數層玻璃使用
▼周邊環境
・到橘台第2公園步行1分鐘(約60m)
・到橫濱市立御岳台小學步行4分鐘(約320m)
■ 在找想要的家方面給予幫助的━━━━━・・・
房屋的詳細、需討論是如感興趣,歡迎請隨時聯繫我們。
查看評論 收起