鐮倉市大船新建透天房A號棟

透天房

外觀 外觀

外觀 是東北、東南的角地。土地面積:79.65平方公尺(約24.09坪)

外觀 外觀

外觀 外觀

外觀 外觀

外觀 外觀

含有前面道路的外觀 東南一側(公路)幅員5.9m

含有前面道路的外觀 東北一側(公路)幅員4.5m

含有前面道路的外觀

含有前面道路的外觀

含有前面道路的外觀

含有前面道路的外觀

含有前面道路的外觀

含有前面道路的外觀

含有前面道路的外觀

含有前面道路的外觀

外觀 外觀

風景 能在富士山遠眺(出自氣候的)

風景 能在富士山遠眺(出自氣候的)

陽台

含有前面道路的外觀 外觀

含有前面道路的外觀 外觀

含有前面道路的外觀 院子

含有前面道路的外觀

含有前面道路的外觀

含有前面道路的外觀

含有前面道路的外觀

小坂小學(約1120m)

岩瀨中學(約1220m)

yatonomaekoneko公園(約300m)

7-Eleven鐮倉大船6丁目商店(約550m)

伊藤洋華堂大船店(約1310m)

西友大船店(約1470m)

大船中央醫院(約1070m)

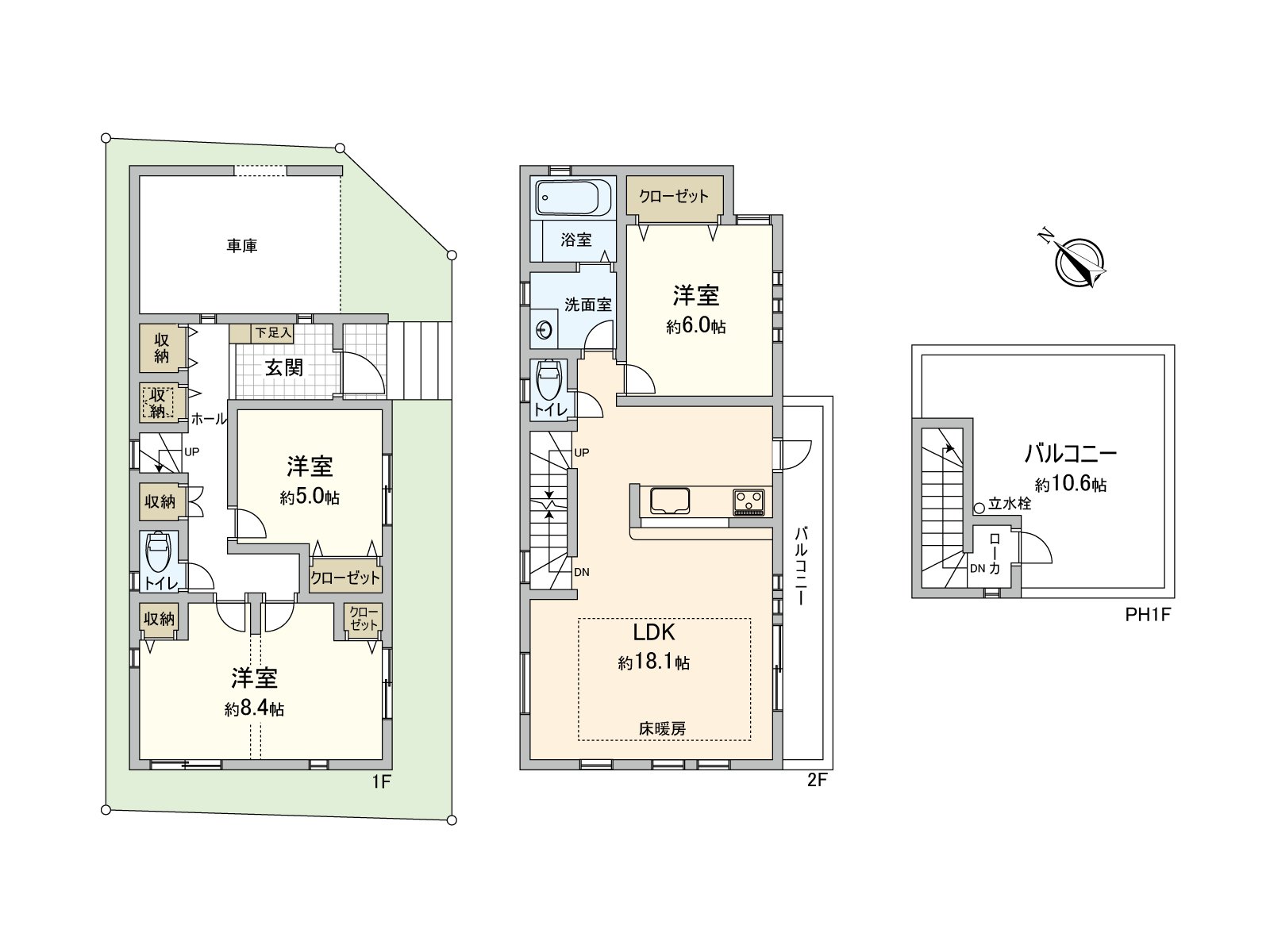
[平面圖]建築面積:107.53平方公尺
> 用語集

用語集

推薦重點

查看評論 收起

周邊地圖

地址 神奈川縣鐮倉市大船 > GoogleMap


諮詢
諮詢
諮詢
諮詢