東久留米市新川町2丁目透天房

透天房

外觀 為南側打開也在1樓充分是太陽在的亮的自己的家。

客廳 有約16.5張塌塌米舒適的客廳。關於2面采光,有開放感覺。

客廳 因為地板暖氣也具有所以也可以度過冷的時期舒暢♪

客廳 從大的窗充分進入自然光。

客廳 在2022年10月已經一部分翻新實施。

廚房 有地板下邊收納,能保持宣判處以感覺清醒的空間。

廚房 洗滌槽和爐子的間隔廣闊,并且是容易烹調的廚房。

廚房 從屬於3份爐子·烤爐,并且有,同時能做復數的菜♪

公共汽車 附帶不被氣候左右而可以洗衣的浴室暖氣烘乾機。

洗臉 在三面鏡的裡面以及下部的收納,感覺清醒和收納能要化妝品或者洗滌劑、打掃用具。

廁所 [1樓廁所]

卧室 [2樓西式房間]為面向2面采光、陽台亮的房間。

卧室 [2樓西式房間]存儲空間也豐富。

室內 [2樓西式房間]為南側有窗陽光良好♪

室內 [2樓西式房間]南側有大的窗,明亮地有開放感覺。

室內 [2樓西式房間]為各居室有存儲空間用家具的設置最低限度地能夠。

廁所 [2樓廁所]

外觀 西武池袋線"東久留米"車站步行12分鐘

外觀 周圍也擁有便利店以及超市,生活便利性良好

外觀 正在第一類低層住宅專用區的閒靜的住宅區佇立

停車場 [停車場]

含有前面道路的外觀 也在市立的小學、中學都步行6分鐘的範圍以內在育兒家庭推薦的環境

含有前面道路的外觀 是綠豐富的居住環境。

成城石井emio東久留米商店(約830m)

Lawson東久留米站東口店(約740m)

Lawson商店100東久留米東口店(約760m)

Tomod's Emio東久留米商店(約820m)

SUNDRUG東久留米商店(約950m)

超市Viva Home東久留米商店(約1064m)

市立第2小學(約420m)

市立大門中的學校(約420m)

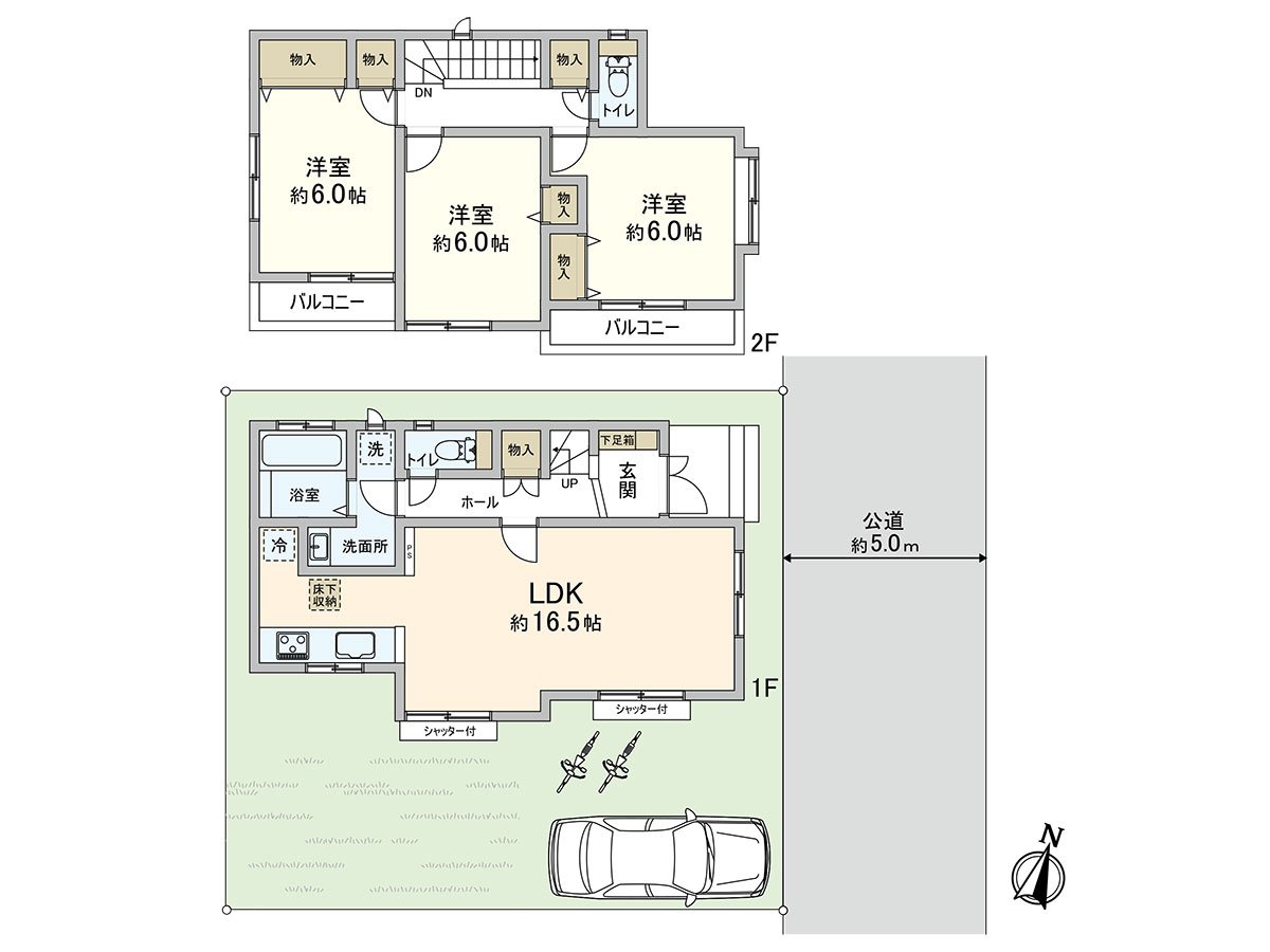
建築面積:有85.29平方公尺、3LDK的舒適的間取。是3間2樓南向曝光面的亮的房間♪
> 用語集

用語集

推薦重點

查看評論 收起

周邊地圖

地址 東京都東久留米市新川町2丁目 > GoogleMap


諮詢
諮詢
諮詢
諮詢