47,990,000 日圓
小學 小平市立小平第一小學 1580m
中學 小平市立小平第5中學 740m
超市 美食城立川若葉店 840m
公園 自來水公園 100m
醫院 現在鷹醫院 620m
其他便利設施1 在7-Eleven小平創值高中的前面的商店 480m
■ 交通指南
○西武鐵道國分寺線鷹之台站步行13分鐘
■ 推薦重點
○第一類低層住宅專用區的閒靜的住宅區
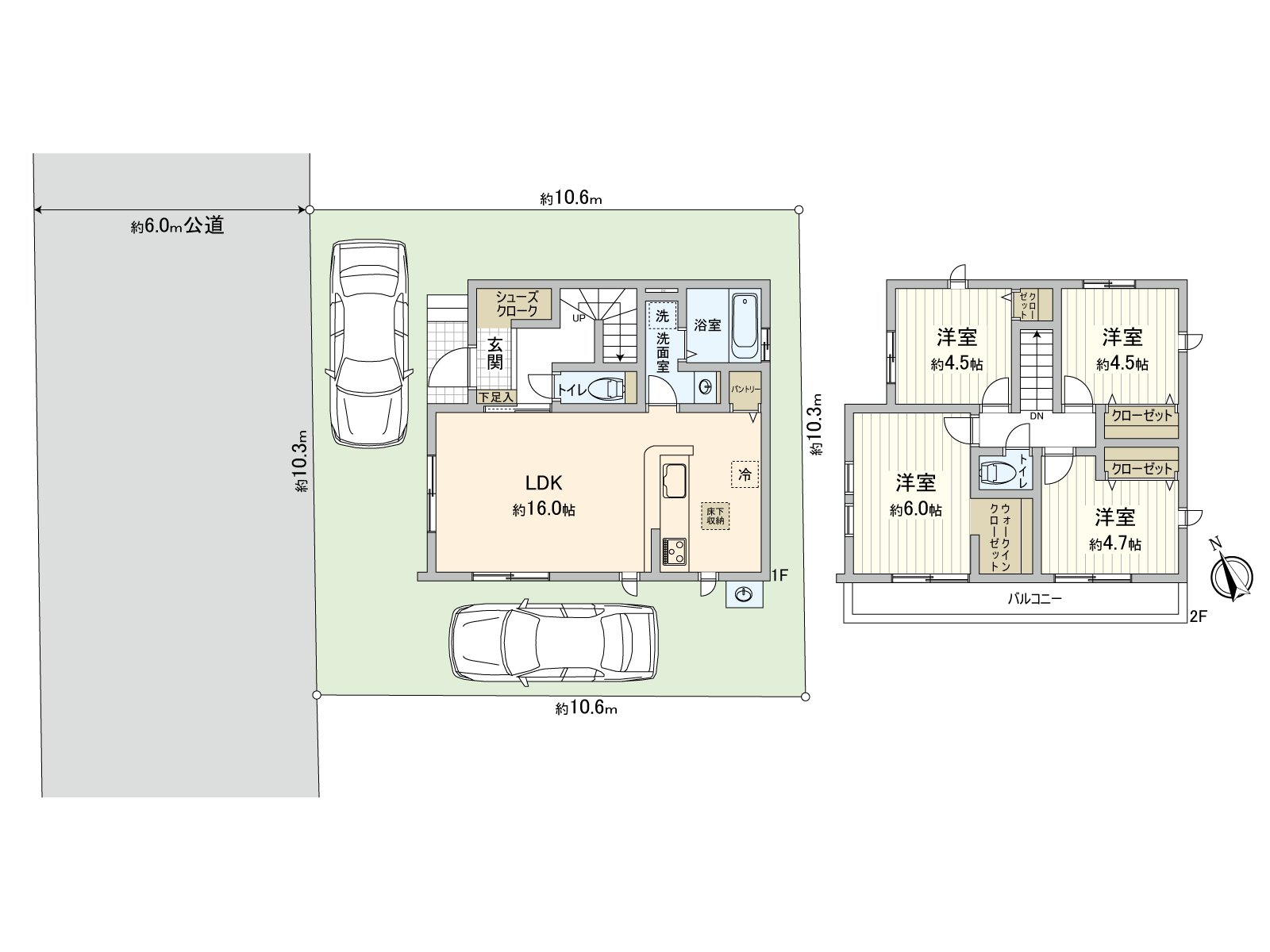
○房型4LDK
○用地面積110.21平方公尺
○建築面積87.76平方公尺
○有全居室收納
○有嵌入式衣櫃以及鞋衣帽寄存處,收納豐富
○寬敞的約16張塌塌米LDK
○適合2個房間繼續的南面的寬大的陽台
○汽車空間2台分鐘(出自車型的)
[對國分寺、小平區域在討論移動的顧客]
※也承受關於國分寺、小平區域以外的房地產的出售的需討論。
■也把自己的家的"出售"交給三井Rehouse請。
・是否最好開始什麼雖然是否是否"出售是以前購買是以前"想重新購買可是不知道。
・想把握擁有房地產的行情。
・因為剩下自己的家的住宅貸款所以想談無勉強的資金計劃。
在顧客的情形合起來,合計,從住在的購買到出售,支援。
首先,在免付費專線,請命令擁有房地產的概要。
"免費評估的申請"是免付費專線0120-323-620
詳細的,到負責如感興趣,歡迎請隨時聯繫我們。
查看評論 收起