43,900,000 日圓
小學 上青木南小學 990m
中學 上青木中學 1100m
超市 小Coop天神橋商店 180m
-房屋的推薦重點-
▼建築物的特徴
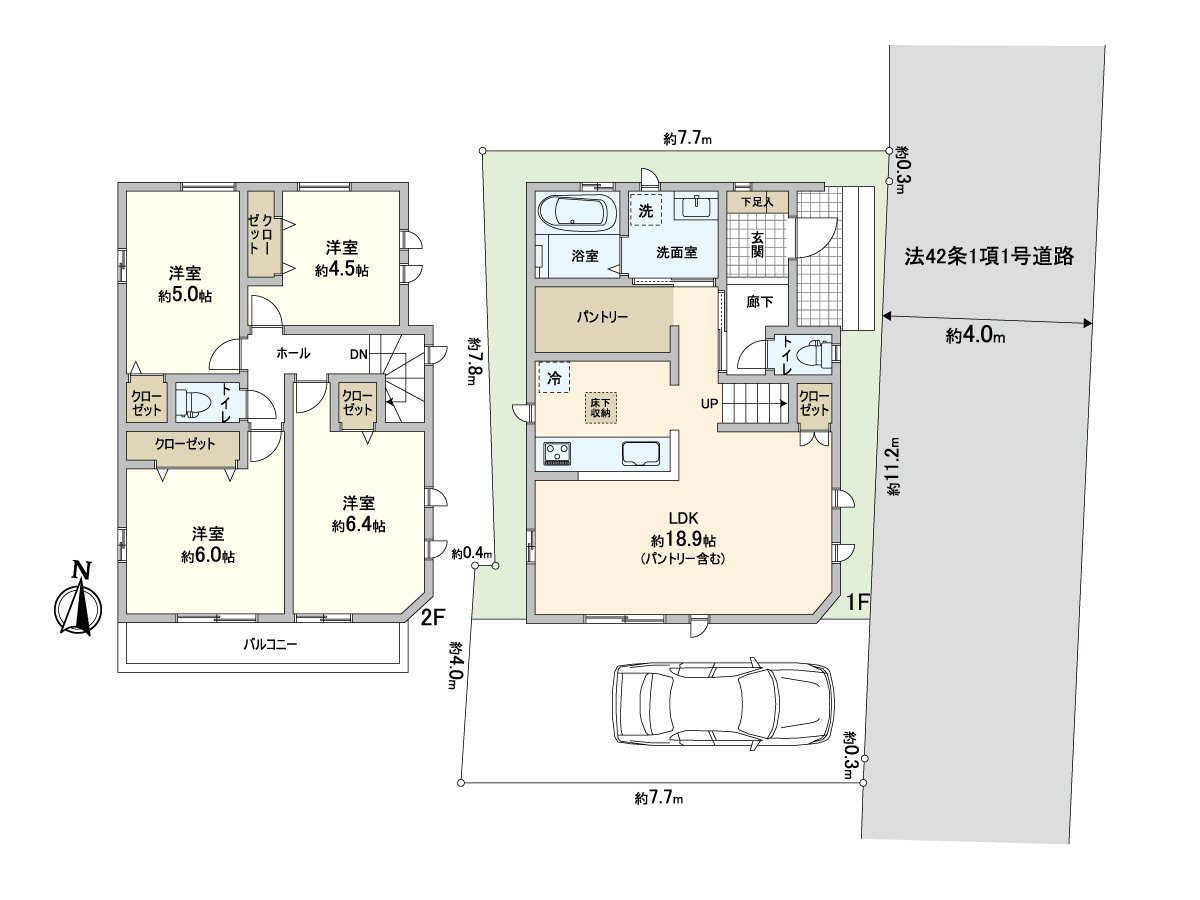
・2層的新建透天房
・面向幅員約4.0m的公路1台停車場(車型限制有)
▼房間的特徴
・LDK是約18.9張塌塌米和能舒適地舒暢的空間
・LDK第三版采光
・南向曝光面陽台
▼設備
・有全居室收納、餐具室的充實的收納計劃
・考慮家務導線的房型設計
■ 在找想要的家方面給予幫助的━━━━━・・・
房屋的詳細、需討論是如感興趣,歡迎請隨時聯繫我們。
查看評論 收起