51,800,000 日圓
小學 芝樋之爪小學 300m
中學 芝西中學校 600m
-房屋的推薦重點-
▼位置
・JR京濱東北/根岸線"蕨"車站步行15分鐘
▼建築物的特徴
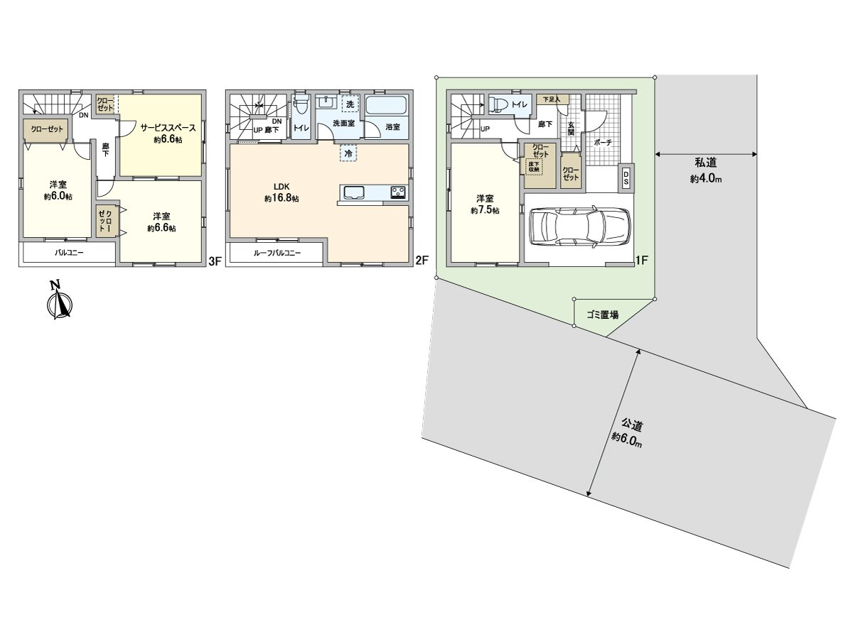
・木造3階建、3LDK+S新建房屋住宅
・每前面道路約6m有開放感覺
・從屬於內裝車庫
▼房間的特徴
・讓水周圍集中於1個地方,考慮生活的房型
・LDK是約16.8張塌塌米和能舒適地舒暢的空間
・面向陽台的亮的西式房間
▼設備
・與家族的會話興奮起來的開放式廚房
・到雨的日,洗的衣物也乾的浴室換氣乾燥機能
・能為收納豐富有效地靈活運用各居室的居住空間
■ 在找想要的家方面給予幫助的━━━━━・・・
房屋的詳細、需討論是如感興趣,歡迎請隨時聯繫我們。
查看評論 收起