64,800,000 日圓
小學 芝南小學 670m
中學 芝中學 1980m
超市 MAMMY MART川口草坪店 400m
公園 芝中田南公園 160m
其他便利設施1 7-Eleven蕨冢越3丁目商店 270m
其他便利設施2 川口芝中田郵局 350m
其他便利設施3 永旺夢樂城川口前川 1120m
-房屋的推薦重點-
▼位置
・JR京濱東北/根岸線蕨站步行10分鐘
▼建築物的特徴
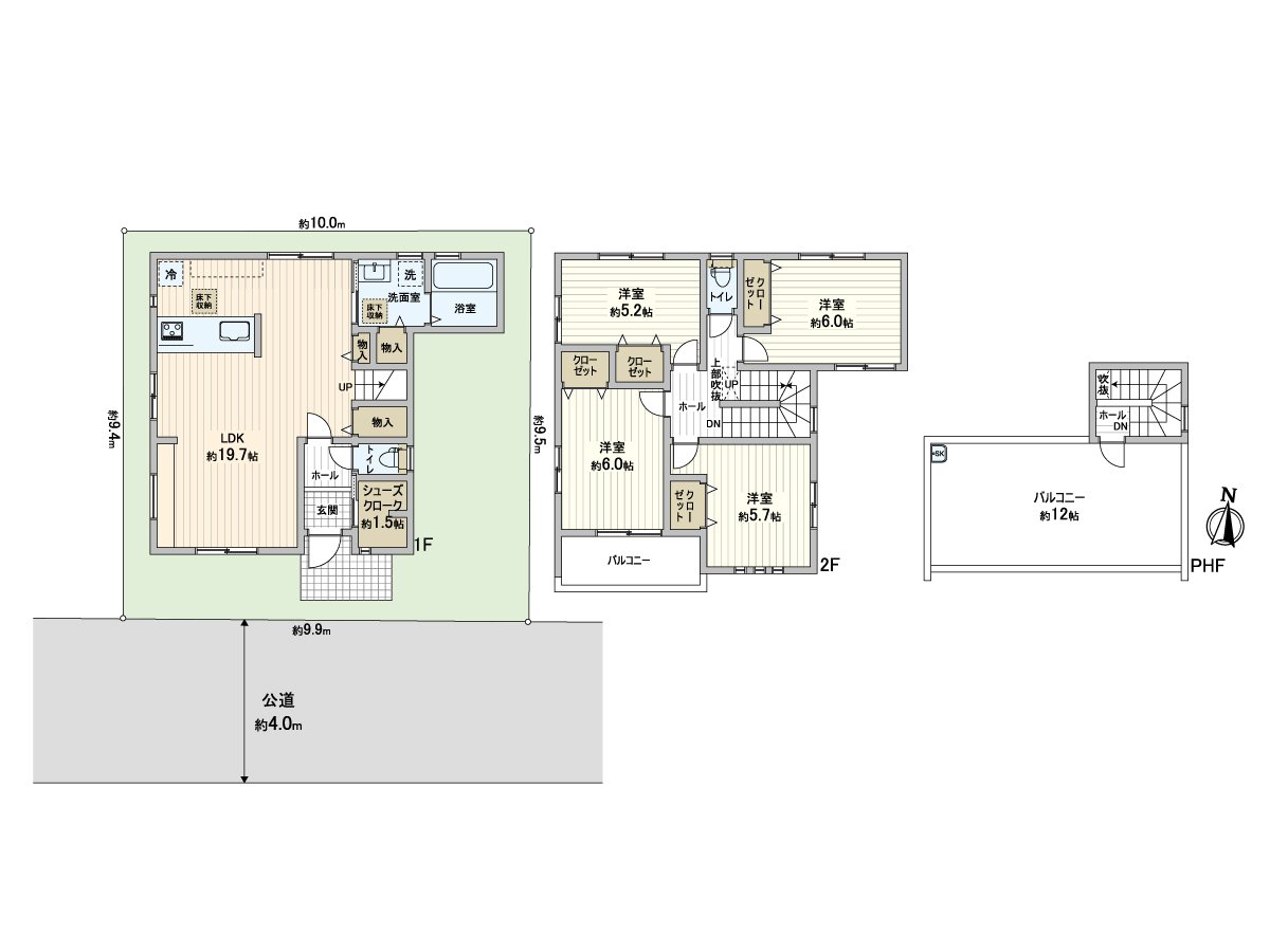
・2026年3月完成計劃的新建透天房
・停車位1台分鐘有※依靠車型
・有約12張塌塌米屋頂陽台,栓
・二層樓的4LDK
▼房間的特徴
・客廳天花板高度約2.6m
・約19張塌塌米寬敞的LDK
・有約1.5張塌塌米舒適的鞋衣帽寄存處
▼設備
・食器洗淨乾燥機
・浴室換氣乾燥暖氣時機
■ 在找想要的家方面給予幫助的━━━━━・・・
房屋的詳細、需討論是如感興趣,歡迎請隨時聯繫我們。
查看評論 收起