64,800,000 日圓
超市 Mybasket赤羽岩淵站前店 330m
公園 北區立赤羽東公園 460m
醫院 赤羽岩渕醫院 75m
其他便利設施1 薬 マツモトキヨシ 赤羽すずらんストリート店 420m
其他便利設施2 セブン-イレブン 北区岩淵北本通り店 200m
其他便利設施3 ファミリーマート 赤羽スズラン通り店 430m
■ 交通指南━━━━━━━━━━━━━━━・・・・・
○ 東京地鐵南北線"赤羽岩淵"車站步行5分鐘
0 京浜東北線、埼京線其他"赤羽"車站步行10分鐘
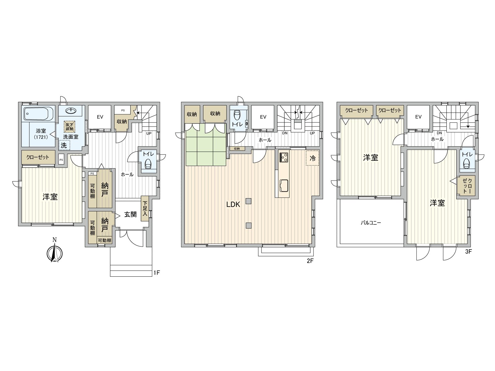
■ 推薦重點━━━━━━━━━━━・・・・・
○ 在sekisuihaimu建造
○ 南、西的角地
○ 幾個2車站線路能利用,有,便於通勤上學
○ 從最近車站的赤羽岩淵站步行5分鐘的良好地理位置
○ 關於朝南,陽光良好
○ 全部電化住宅
○ 會話興奮起來的櫃台廚房
○ 有全居室收納
○ 儲藏室,非居室等的有,豐富的存儲空間
○ 廁所在所有的階
○ 有洗碗機
○ 有附帶TV監視器的內部對講機
■ 翻新內容(2026年2月完畢)━━━━━━━━━━━・・・・・
・下足入交換
・整體衛浴交換
・盥洗台交換
・廁所更換
・組合廚房交換
查看評論 收起