垂水區星陵台7丁目透天房3號地

透天房

外觀 外觀

客廳 有白×木紋風格的溫暖的客廳飯廳。

客廳 有白×木紋風格的溫暖的客廳飯廳。

客廳 有白×木紋風格的溫暖的客廳飯廳。

客廳 嵌入燈上演成熟穩重的空間。

廚房 能瞭望LDK的開放式廚房。三倍寬大的IH爐子使用。

廚房 能收藏烹調家電以及垃圾箱,廚房用品的背面碗櫥有。

收納 廚房旁邊餐具室。便於食品的收藏。來自烹調空間的流跡線也順利。

洗臉 收納充實的3面鏡子型的盥洗台。

公共汽車 有以重音面板映照的白為基調的幹凈的感的浴室。

廁所 廁所(1樓)

廁所 廁所(2樓)

室內 約7.0張塌塌米嵌入式衣櫃,壁櫥附帶的西式房間

室內 約6.0張塌塌米西式房間

室內 約6.0張塌塌米西式房間

室內 約5.2張塌塌米對家族的舒適空間或者來客活躍的和式房間

其他 約6.0張塌塌米在書齋以及工作空間,收納等的各種各樣的用途可以使用的儲藏室

收納 大的行李能結實地收拾起來的嵌入式衣櫃

門口 收納充實的門口

門口 便於戶外用品的收藏的泥地收納有。

收納 便於戶外用品的收藏的泥地收納有。

風景 被屋頂Terrace眺望東面

風景 被屋頂Terrace眺望南側

其他 4.86平方公尺的寬敞的屋頂Terrace。

其他 便利的洗手台有。

含有前面道路的外觀 前面道路

外觀 外觀

外觀 外觀

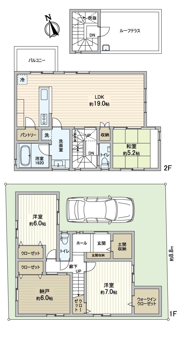
平面圖
> 用語集

用語集

推薦重點

查看評論 收起

周邊地圖

地址 兵庫縣神戶市垂水區星陵台7丁目 > GoogleMap


諮詢
諮詢
諮詢
諮詢