43,980,000 日圓
小學 吹田市立千裡新田小學 1000m
中學 吹田市立南千裡中學 910m
超市 阪急綠洲千裡山竹園商店 260m
其他便利設施1 北大阪急行電鉄 南北線「緑地公園」駅 640m
其他便利設施2 千裡山站(阪急千裡線) 1240m
其他便利設施3 全家便利店吹田千裡山西商店 280m
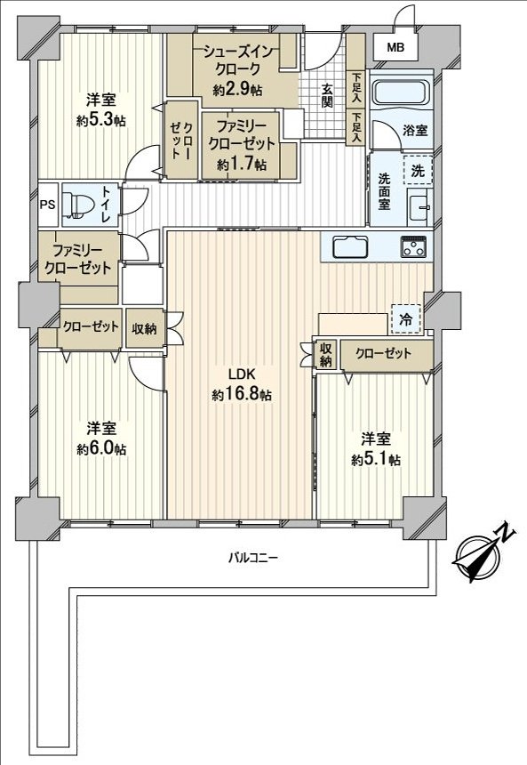
■推薦重點
・151戶總戶數的大規模的Mansion
・平面停車場
・私人使用面積89.04平方公尺
・收納力的高的3LDK的房型
・陽光在朝南西陽台良好
・不關於1樓部分在意對預先階的噪音,能生活。
■打算重新裝修(2026年2月完成)
・地板張替(3間LDK,西式房間,走廊)
・全Cross換貼
・CF換貼(門口,SIC,洗臉室,廁所)
・房型變更4LDK→3LDK+SIC,WIC,家庭衣帽寄存處
・鞋櫃新設
・有浴室烘乾機的整體衛浴交換
・有再加熱功能的電熱水器交換
・盥洗台交換
・洗碗機能從屬於的組合廚房交換
・廁所更換
・House清洗
■ 在找想要的家方面給予幫助的━━━━━・・・
房屋的詳細、需討論是如感興趣,歡迎請隨時聯繫我們。
查看評論 收起