Our Site uses cookies to improve your experience on our website. For more details, please read Cookie Policy.
By closing this message or starting to navigate on this website, you agree to our use of cookies.
This page is translated using machine translation. Please note that the content may not be 100% accurate.
58,700,000 JPY
Elementary school Toda City Toda-Higashi elementary school 210m
Junior high school Toda City Toda-Higashi junior high school 210m
Supermarket Berg's Toda shop 380m
Park Kamimachi second Park 240m
Other facilities 1 FamilyMart 4, Minamicho, Warabi store 460m
Other facilities 2 7-Eleven Toda-shi government office South street shop 550m
Other facilities 3 petit madoca Toda shop 410m
■ Recommended
○ Mel Deer sale in lots
○ Newly-Built Detached House
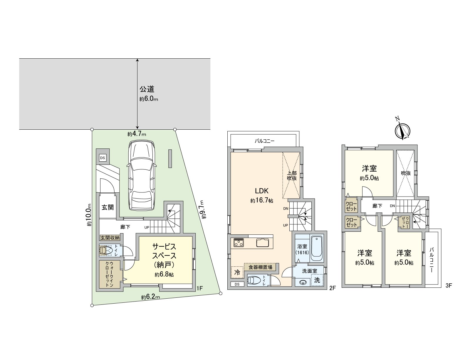
○ About 16.7 quires of LDK spaciousness
○ Layout 3LDK+S (storeroom)
○ Island kitchen counter
○ Living in stairs
○ There is parking space
○ The Abutting road Northeast side, about 6.0m public road
○ Nearby facilities enhancement
(super within the range of a 10-minute walk a drugstore, a convenience store, a general hospital, a park, an elementary and junior high school)
Read More Read Less