Our Site uses cookies to improve your experience on our website. For more details, please read Cookie Policy.
By closing this message or starting to navigate on this website, you agree to our use of cookies.
This page is translated using machine translation. Please note that the content may not be 100% accurate.
Glossary
48,900,000 JPY
Elementary school Narashino City Okubo Elementary School 400m
Junior high school The Narashino City second junior high school 1,700m
■ Access
* A 10-minute walk from Keisei Main Line "Keiseiokubo" station
○ JR Chūō,Sōbu Line (Local) "Tsudanuma" station bus 16 minutes (to bus stop "6, Fujisaki" a 6-minute walk)
○ Shin-Keisei Electric Railway "Shintsudanuma" station bus 16 minutes (to bus stop "6, Fujisaki" a 6-minute walk)
■ Recommended
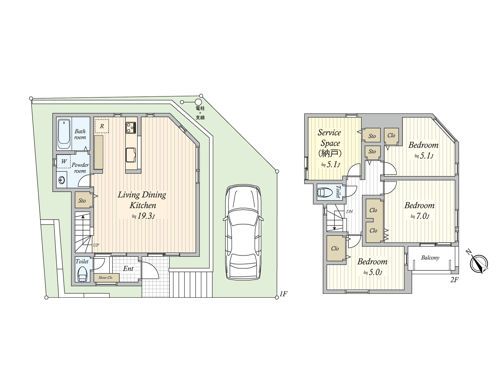
○ Land area: 100.02 square meters (about 30.25 tsubo)
○ Total floor area: 99.68 square meters (about 30.15 tsubo)
* 3SLDK
○ There is parking space (※ Depending on car type)
■ Life information
* To Narashino City Okubo Elementary School a 5-minute walk (about 400m)
* To the Narashino City second junior high school a 22-minute walk (about 1,700m)
* To a Maruetsu Okubo ekimae shop an 8-minute walk (about 600m)
Read More Read Less