Our Site uses cookies to improve your experience on our website. For more details, please read Cookie Policy.
By closing this message or starting to navigate on this website, you agree to our use of cookies.



6, Sagamidai Newly-Built Detached House Building No. 1

Detached House

The appearance [the appearance photograph] Newly-Built Detached House of 3SLDK of 117.16 square meters of Land area 67.09 square meters total floor area

Living [LDK: about 18.1 tatami] It is the design of a house that the communication of a family spending time in living and the person working in a kitchen is easy to take.

Living [LDK: about 18.1 tatami] For 2nd floor living, I can live without minding eyes from the outside.

Kitchen [kitchen] A system kitchen of the Dishwasher and dryer deployment supporting housework. Three shares of cookers are specifications, and cooking is possible at the same time in four places including the grill in total.

Bus [bathroom] It is provided with a counter to be able to put shampoo or soap. With bathroom dryer, weather makes an outstanding performance as a laundry drying place of the bad day. I can do it, and moisture measures or the mold-proof prevention after the bathing are hygienic, too.

Washing face [washing face room] Because there is it aside, a kitchen has a short housework line of flow and can perform dishes, washing, outfit effectively.

Washing face [Dresser] I secure storage space under the back of the triple mirror, the bowl. I can store stock and the washing face accessories such as detergents and get married clearly.

Restroom [1F restroom] Because there is it, in the case of a visitor, two rest rooms are available without hesitation.

Restroom [2F restroom] It is easy simple interior of the cleaning.

The room [a Western-style room: about 7.0 tatami] To family constitution and a lifestyle, it is available in a multi-purpose.

The room [WIC/ Western-style room: about 7.0 tatami] Other than clothing, it is available in the storing such as futon and a suitcase, the sporting goods of the seasonal thing.

The room [a storeroom: about 4.4 tatami] The study and telework space, storage space are available by various uses.

The room [a Western-style room: about 5.2 tatami] It is easy each room flooring specifications of the cleaning.

Terrace [about 5.2 quires of Western-style rooms side terrace]

The room [a Western-style room: about 5.9 tatami] It is provided with the closet which I can store clothing or a bag in. Choices made with a room seem to increase because I can use the house space widely.

Terrace [about 5.9 quires of Western-style rooms side terrace]

Storing [1F corridor storing] The corridor storing is useful to store the daily necessities which I do not want to usually show including the cleaning tool.

The entrance [the entrance storing] I can keep the entrance clearly because I can store many shoes.

The appearance to include front road [the appearance photograph] There is a feeling of opening in a corner lot. A park, an elementary school have good 6-minute walk range child care environment.

Living [LDK: about 18.1 tatami]

Living [LDK: about 18.1 tatami]

Storing [storing /LDK: about 18.1 tatami]

Kitchen [kitchen] For island kitchen counter open kitchen, there is an open feeling.

Kitchen [kitchen]

Kitchen [a kitchen: a cooker] It is provided with three shares of cookers which is available for plural cooking. Perform housework efficiently and can enjoy the time for hobby and time for pleasure of home life with the family in the time that I had free.

Kitchen [a kitchen: a sink] I am easy to clean it and am a stainless steel sink with high heat-resistant durability. The faucet is available for the cooking use for the drink with one water purifier type.

Kitchen [a kitchen: a dishwasher] It is a dishwasher supporting daily housework.

The room [a Western-style room: about 7.0 tatami]

The room [a Western-style room: about 7.0 tatami]

The room [a Western-style room: about 7.0 tatami]

The entrance [the entrance]

The entrance [the entrance]

The room [a storeroom: about 4.4 tatami]

The room [a Western-style room: about 5.2 tatami]

The room [a Western-style room: about 5.2 tatami]

The room [a Western-style room: about 5.2 tatami]

Storing [storing/Western-style room: about 5.2 tatami]

Terrace [about 5.2 quires of Western-style rooms side terrace]

View [about 5.2 quires of view/Western-style rooms side terrace]

The room [a Western-style room: about 5.9 tatami]

The room [a Western-style room: about 5.9 tatami]

The room [a Western-style room: about 5.9 tatami]

Storing [about 5.9 quires of storing/Western-style rooms]

Terrace [about 5.9 quires of Western-style rooms side terrace]

View [about 5.9 quires of view/Western-style rooms side terrace]

The appearance to include front road [front road] The Northeast side, front road of width about 4m.

The appearance to include front road [front road] The Northwest side, front road of width about 4.1m.

The appearance to include front road [front road]

Parking lot [Parking lot] For one parking space (Depending on car type)

The appearance [the appearance photograph]

The appearance [the appearance photograph]

Sagamihara City young grass elementary school (about 470m)

Sagamihara City young grass junior high school (about 230m)

TOP Sagamidai store (about 300m)

Young grass park (about 320m)

Kitamura family clinic (about 400m)

Create S D Sagamidai store (about 830m)

Sagamihara Futaba post office (about 1,080m)

7-Eleven 6, Sagamidai, Sagamihara store (about 180m)

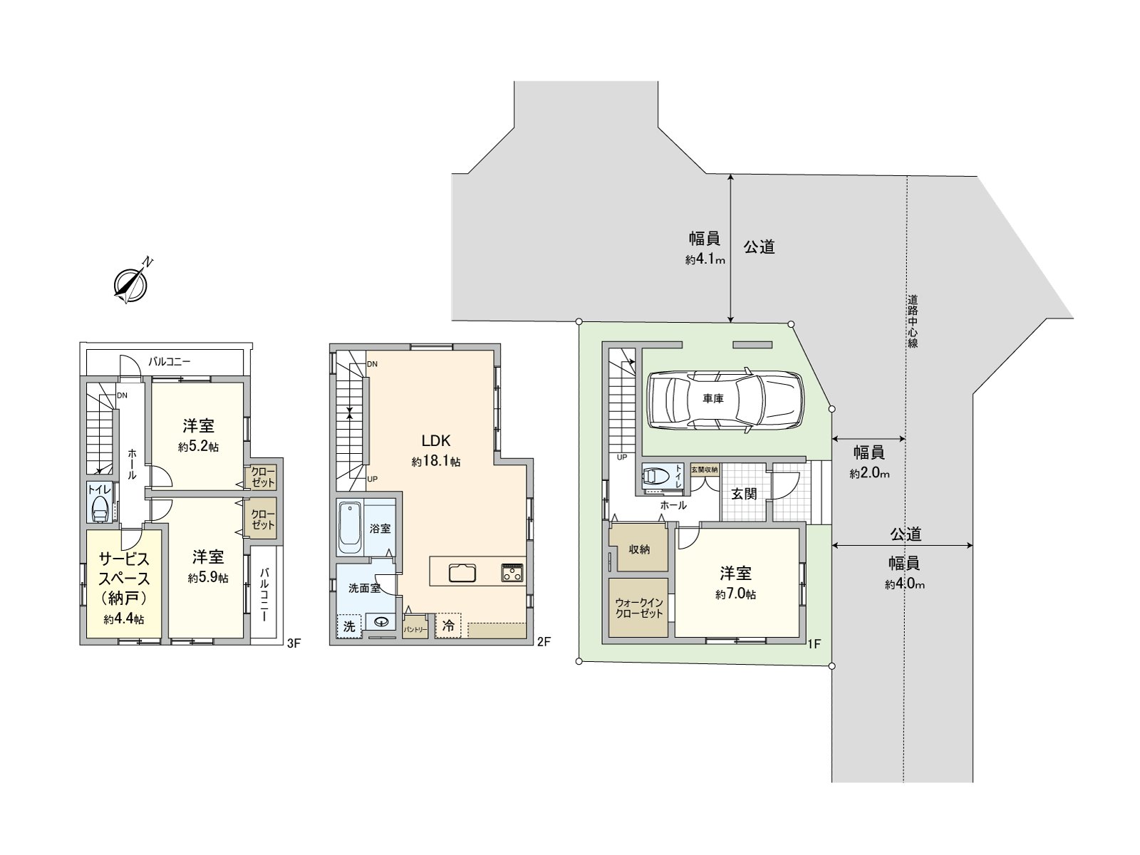
[floor plan] About two terrace, all rooms two lighting, the ventilation is good
> Click for glossary

Glossary

Recommended

Read More Read Less

Surrounding map

Address 6, Sagamidai, Minami-ku, Sagamihara-shi, Kanagawa > GoogleMap


Inquiry
Inquiry
Inquiry
Inquiry