Our Site uses cookies to improve your experience on our website. For more details, please read Cookie Policy.
By closing this message or starting to navigate on this website, you agree to our use of cookies.



New Price 4, Higashionuma Newly-Built Detached House C Building

Detached House

The appearance [the appearance photograph] It is a 2-minute walk from Odakyu Line "Sagamiono" station by bus for 16 minutes

Living [LDK: about 20 tatami] LDK to be able to enjoy various layouts. To a feeling and a lifestyle, the making of space that can spend time pleasantly is possible. ※A sale price does not include furniture, household appliances, the furnishings in a photograph.

Living [LDK: about 20 tatami] It is the design of a house that the communication of a family spending time in living and the person working in a kitchen is easy to take. ※A sale price does not include furniture, household appliances, the furnishings in a photograph.

Kitchen [kitchen] I enjoy the conversation with the important family while making kitchen work. It is the island kitchen counter which the communication of the family is born as. ※A sale price does not include furniture, household appliances, the furnishings in a photograph.

Bus [bathroom] It is the bathroom of 1 tsubo type to be able to relax relaxedly. ※A sale price does not include furniture, household appliances, the furnishings in a photograph.

Washing face [washing face room] A washing face room and bathroom do not have a step and are the specifications that it is easy to use toward all generations. ※A sale price does not include the furnishings in a photograph.

Washing face [Dresser] I secure storage space under the back of the triple mirror, the bowl. I can store stock and the washing face accessories such as detergents and get married clearly. ※A sale price does not include furniture, household appliances, the furnishings in a photograph.

Restroom [1F restroom] Because there is it, in the case of a visitor, two rest rooms are available without hesitation.

Restroom [2F restroom] It is easy simple interior of the cleaning. It is a restroom with a toilet bowl with warm water flush system for washing user available comfortably.

The room [a Western-style room: about 7.2 tatami] To family constitution and a lifestyle, it is available in a multi-purpose.

The room [a Western-style room: about 7.2 tatami] It is a Western-style room with a space for placement of the furniture.

Storing [storing/Western-style room: about 7.2 tatami] Other than clothing, it can inflect in the storing of the big thing including a suitcase and sporting goods.

The room [a Western-style room: about 6 tatami] It is the bright Western-style room where Hikari enters at the window of the Southeast Orientation.

Storing [storing/Western-style room: about 6 tatami] I can store clothes in beautiful Status.

Terrace [terrace] It is terrace of the Southeast Orientation.

View [view] A view from terrace.

The room [a Western-style room: about 4.5 tatami] The study or telework space are available to a lifestyle.

The room [a Western-style room: about 5.5 tatami] The high-centered balance window which a lot of wall surfaces are easy to locate furniture is established. It is area with a space even if I locate a bed.

The entrance [the entrance: shoes box] I can store many shoes and can let the entrance be refreshing. ※A sale price does not include furniture, household appliances, the furnishings in a photograph.

Parking lot [Parking lot] Parking lot (Depending on car type) of the space for one parking

The appearance to include front road [front road] Exposure to the sun is good in a corner lot.

The appearance to include front road [front road] It is a public road of width about 6m.

The appearance [the appearance photograph] I let you go through, and an exposure to the sun style is good in a Northeast corner lot. There are a supermarket and a drugstore near and is convenient for shopping.

Living [LDK: about 20 tatami] ※A sale price does not include furniture, household appliances, the furnishings in a photograph.

Living [LDK: about 20 tatami] ※A sale price does not include furniture, household appliances, the furnishings in a photograph.

Living [LDK: about 20 tatami] ※A sale price does not include furniture, household appliances, the furnishings in a photograph.

Kitchen [kitchen] ※A sale price does not include furniture, household appliances, the furnishings in a photograph.

Kitchen [kitchen] ※A sale price does not include furniture, household appliances, the furnishings in a photograph.

Kitchen [a kitchen: a cooker] It is provided with three shares of cookers which is available for plural cooking. Perform housework efficiently and can enjoy the time for hobby and time for pleasure of home life with the family in the time that I had free. ※A sale price does not include furniture, household appliances, the furnishings in a photograph.

Kitchen [a kitchen: a sink] I am easy to clean it and am a stainless steel sink with high heat-resistant durability. The faucet is available for the cooking use for the drink with one water purifier type. ※A sale price does not include furniture, household appliances, the furnishings in a photograph.

Terrace [terrace] It is the terrace which can go in and out of two rooms.

The room [a Western-style room: about 7.2 tatami]

The room [a Western-style room: about 7.2 tatami]

The room [a Western-style room: about 6 tatami]

The room [a Western-style room: about 6 tatami]

The room [a Western-style room: about 6 tatami]

The room [a Western-style room: about 5.5 tatami]

The room [a Western-style room: about 5.5 tatami]

The room [a Western-style room: about 5.5 tatami]

Storing [storing/Western-style room: about 5.5 tatami]

The room [a Western-style room: about 4.5 tatami]

The room [a Western-style room: about 4.5 tatami]

The room [a Western-style room: about 4.5 tatami]

Storing [storing/Western-style room: about 4.5 tatami]

Storing [1F corridor storing] The corridor storing is useful to store the daily necessities which I do not want to usually show including the cleaning tool.

The entrance [the entrance]

The entrance [the entrance] ※A sale price does not include furniture, household appliances, the furnishings in a photograph.

Sagamihara City Futaba elementary school (about 750m)

Sagamihara City Asamizodai junior high school (about 1,110m)

Fresh market なかや Onuma, Sagamihara shop (about 760m)

Misono good friend Park (about 240m)

Dr. Takemiya's office (about 440m)

Create S D Higashionuma, Sagamihara store (about 580m)

7-Eleven 5, Nishionuma, Sagamihara store (about 590m)

Sagamihara Wakamatsu post office (about 660m)

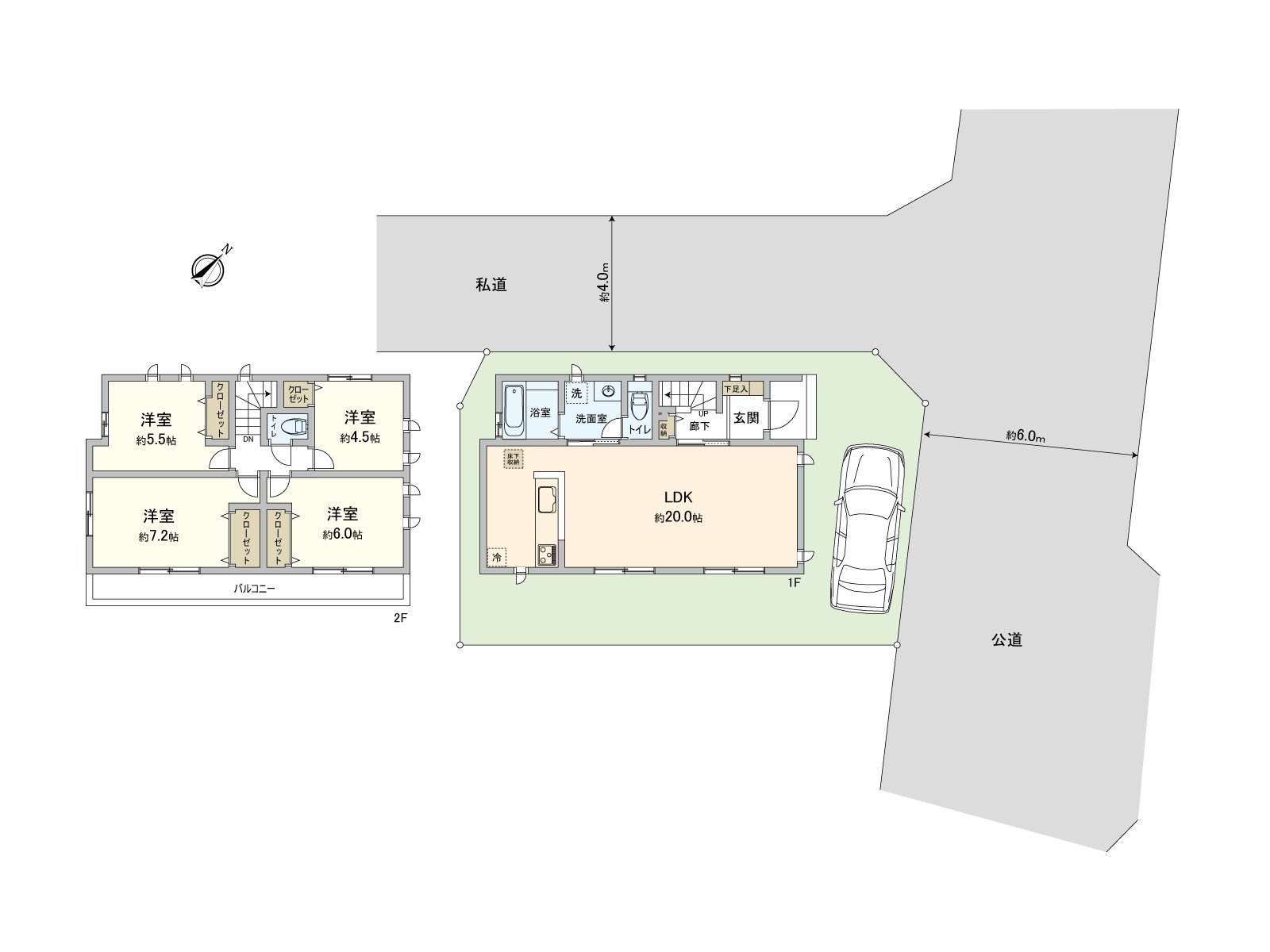
[floor plan] It is Layout of Land area 100.15 square meters (30.29 tsubo) total floor area 96.05 square meters (29.05 tsubo) 4LDK.
> Click for glossary

Glossary

Recommended

Read More Read Less

Surrounding map

Address 4, Higashionuma, Minami-ku, Sagamihara-shi, Kanagawa > GoogleMap


Inquiry
Inquiry
Inquiry
Inquiry