Our Site uses cookies to improve your experience on our website. For more details, please read Cookie Policy.
By closing this message or starting to navigate on this website, you agree to our use of cookies.



New Price 1, Kugenumakaigan, Fujisawa-shi Detached House

Detached House Open house

The entrance [1, Kugenumakaigan, Fujisawa-shi Detached House] The location that 7-minute walk from Odakyu Enoshima Line "Kugenumakaigan" station, the Enoshima Electric Railway "Kugenuma" station are available for in a 14-minute walk.

Living [LDK] A certain about 20.5 quires of space LDK. The island kitchen counter which communication is easy to take is adopted.

Living [LDK] The area that is easy to locate the big furniture including a dining set and the sofa. You can spend a time of the family pleasure of home life relaxedly.

The Other field [shower space] It is provided with the shower space that is convenient for marine sports or the sea play return.

The Other field [Wood deck] I am faced with an LD, and comings and goings are possible from a window for sweeping the dirt out of a room. You put a chair and can enjoy teatime.

Living [LDK] It is the simple interior that grain of wood of the flooring shines in. It is congenial to various interior and can enjoy selection of favorite dining table and chair.

The appearance [the local appearance photograph] It is the appearance of the California style based on white and light blue. Marine sports are recommended toward the hobby to Kugenumakaigan in an 8-minute walk.

Kitchen [kitchen] The Dishwasher and dryer that a housework burden is reduced is carried. It is provided with three shares of cookers with the grill, and dishes are possible at the plural same time.

The entrance [the entrance] Shoes box is provided for the entrance. I display the memory photographs of miscellaneous goods of the Favorite and the family, and the space on the box can color the entrance rotation.

Storing [storing] The kitchen where large-capacity pantry was next to. You can store the cooking household appliances such as stock or the hot plate of the food.

Washing face [washing face room] It is a washing face room clean brightly. Storage space is established under the back and the washing face bowl of the triple mirror. Many things including the stock of the detergent and the electric shaver are packable.

Bus [bathroom] It is with a bathroom ventilation drying heating machine and can dry laundry comfortably regardless of weather and time. It is useful as pollen measures.

The entrance [the entrance] The entrance with the brightly open feeling that Hikari comes in through a window. As the upper part is a colonnade, Hikari comes in through a top light.

Restroom [restroom (1st)] The clean restroom which was based on white. As a toilet bowl with warm water flush system for washing user is installed, it is available comfortably.

Living [LDK] It is accessible from an LD to Wood deck. As it is two lighting, a good sunlight pours.

The entrance [the entrance] Space of healing including a cross and the stairs where warmth of the grain of wood is felt meets the family after the return.

Parking lot [car space] The car space for two is established in the site (Depending on car type). Please confirm it locally by all means.

The entrance [the entrance] The entrance which bright Hikari inserts. As it is the structure that a room is hard to look like in a visitor, privacy is followed.

The entrance [the entrance] The extensive entrance space where even a stroller can just enter. I line up and, in shoes, am easy to fix the outfit.

Kitchen [kitchen]

The room [Western-style room (about 5.5 quires)]

The room [Western-style room (about 8.0 quires)]

Terrace [terrace]

The entrance [the entrance]

The appearance [the local appearance photograph] It is the appearance of the California style based on white and light blue. Marine sports are recommended toward the hobby to Kugenumakaigan in an 8-minute walk.

The appearance [the local appearance photograph] It is the appearance of the California style based on white and light blue. Marine sports are recommended toward the hobby to Kugenumakaigan in an 8-minute walk.

Parking lot [car space] There is it for two (Depending on car type).

The appearance to include front road [front road]

The Other field [Wood deck]

The room [Western-style room (about 5.3 quires)]

Parking lot [car space] There is it for two (Depending on car type).

Sotetsu Rosen Kugenuma store (about 730m)

FamilyMart Kugenumakaigan store (about 420m)

Create S D Odakyu Kugenumakaigan ekimae shop (about 520m) Kugenumakaigan internal medicine clinic, くげぬま ophthalmology clinic enters the 2nd floor

Kugenumakaigan (Shonankaigankoen prev) (about 620m)

Kugenumakaigan internal medicine clinic (about 520m)

藤沢市立鵠南小学校 (about 1,050m)

藤沢市立湘洋中学校 (about 1,530m)

Shimooka Park (Matsugaoka Park) (about 650m)

Kugenuma-Kaigan Station (Odakyu Enoshima Line) (about 530m)

The Kugenuma Station west exit (Enoshima Electric Railway) (about 1,100m)

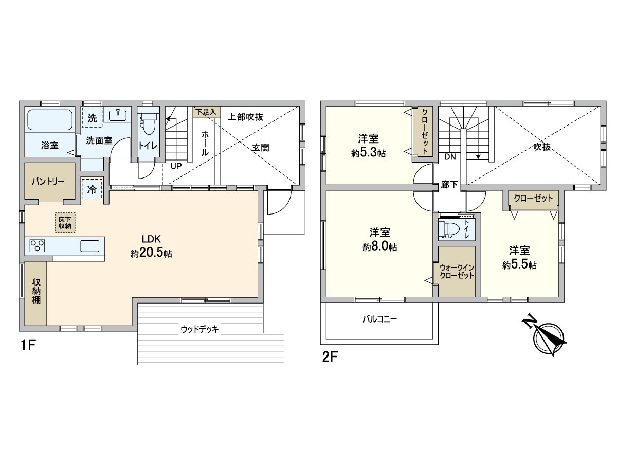
It is the 3LDK of all rooms with flooring specifications. Pantry, the everywhere including the floor lower storing are provided with storing in addition to all rooms storing and can use the house space widely.
> Click for glossary

Glossary

Recommended

Read More Read Less

Surrounding map

Address 1, Kugenumakaigan, Fujisawa-shi, Kanagawa > GoogleMap


Inquiry Open house
Open house Inquiry
Inquiry