Our Site uses cookies to improve your experience on our website. For more details, please read Cookie Policy.
By closing this message or starting to navigate on this website, you agree to our use of cookies.



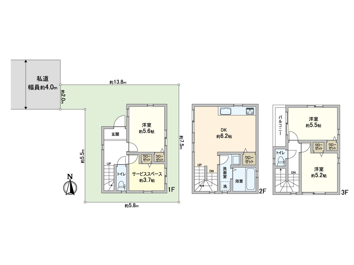
2, Shibashimo, Kawaguchi-shi Newly-Built Detached House Building No. 1

Detached House

The appearance

Living

Living

Living

Living

Living

Kitchen

Kitchen

Kitchen

Washing face

Bus

Restroom 1F

Restroom 3F

Terrace

View

The room About 5.6 quires of 1F Western-style rooms

The room About 5.6 quires of 1F Western-style rooms

The room About 5.6 quires of 1F Western-style rooms

The room About 5.6 quires of 1F Western-style rooms

Storing Storing (about 5.6 quires of 1F Western-style rooms)

The room About 5.5 quires of 3F Western-style rooms

The room About 5.5 quires of 3F Western-style rooms

The room About 5.5 quires of 3F Western-style rooms

Storing Storing (about 5.5 quires of 3F Western-style rooms)

The room About 5.2 quires of 3F Western-style rooms

The room About 5.2 quires of 3F Western-style rooms

The room About 5.2 quires of 3F Western-style rooms

Storing Storing (about 5.2 quires of 3F Western-style rooms)

Other introspectiveness About 3.75 quires of service space

Storing Storing (about 3.75 quires of service space)

The entrance

The appearance

The appearance

The appearance to include front road

The appearance to include front road

> Click for glossary

Glossary

Recommended

Read More Read Less

Surrounding map

Address 2, Shibashimo, Kawaguchi-shi, Saitama > GoogleMap


Inquiry
Inquiry
Inquiry
Inquiry