Our Site uses cookies to improve your experience on our website. For more details, please read Cookie Policy.
By closing this message or starting to navigate on this website, you agree to our use of cookies.
This page is translated using machine translation. Please note that the content may not be 100% accurate.
46,980,000 JPY
Elementary school Hirakata City Italy Kaga Elementary School 430m
Junior high school Hirakata City さだ Junior High School 1,130m
Other facilities 1 Kozenji Station (Keihan Main Line) 840m
Other facilities 2 FamilyMart Ikaganishimachi, Hirakata store 670m
-Recommended - of the Properties
▼Characteristics
・2023 January
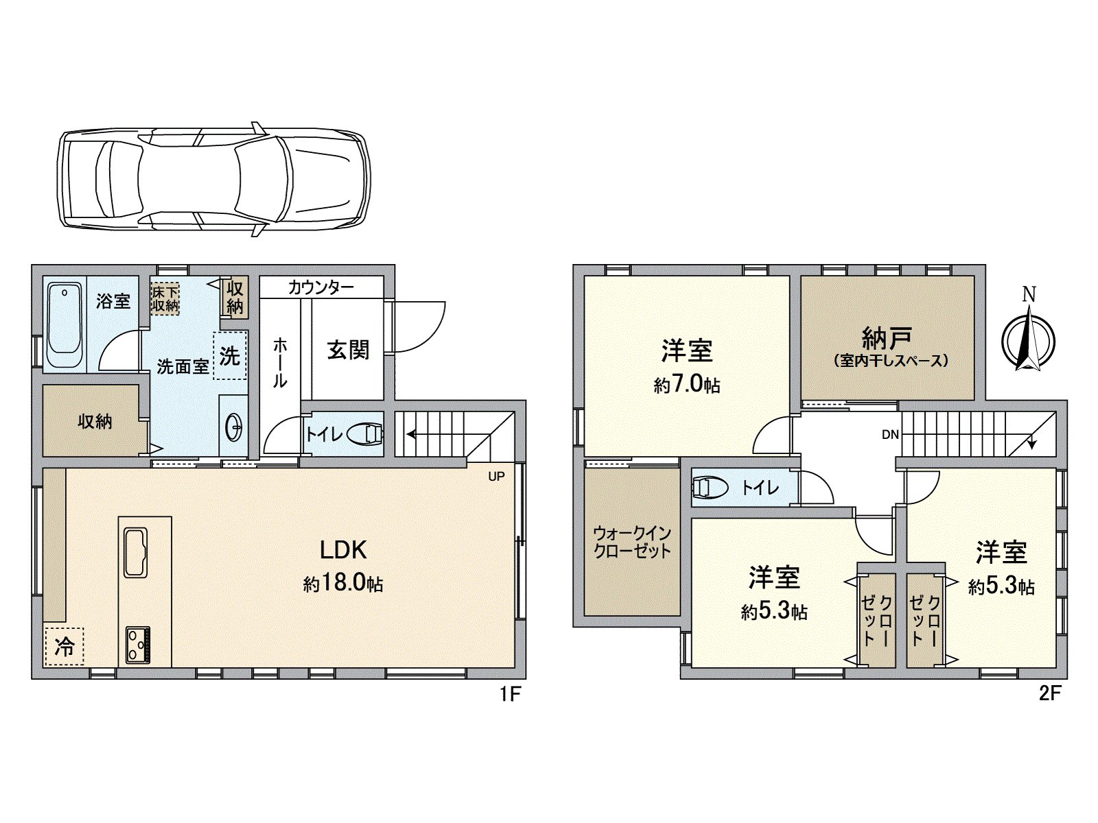
・Security, LDK three collect lighting two all rooms or more and design it
・The island kitchen counter which can look around the living room
・The living stairs where nature and conversations increase
・I gather a place equipped with a water supply and locate it, and a housework line of flow is good
・The master bedroom is belonging to about 7.0 quires of area, WIC
・With storeroom which is available as balcony for drying clothes space
・One car can be usually parked (car model restrictions available)
▼Surrounding environment
・A 9-minute walk from superstore Nakagawa ひらら Kozenji store (about 670m)
・A 6-minute walk from Hirakata City Italy Kaga Elementary School (about 430m)
■ We help you find a property that meets your needs
For property details or inquiries, please feel free to contact us.
Read More Read Less