Our Site uses cookies to improve your experience on our website. For more details, please read Cookie Policy.
By closing this message or starting to navigate on this website, you agree to our use of cookies.



Kanbara, Nishinomiya-shi Second-hand Detached House

Detached House

Living [living] There is a big window on the Southeast side, and warm Hikari comes in in living. It is the comfortable space where I gather if your family is natural.

The appearance [the appearance] The stylish finish that an outer wall grows to the neighboring cityscape and blue skies! Area without the building which is expensive in the neighborhood. I feel blue Vacant to be big.

View [view (south side) from 2F] As there is not shielding, sunlight comes in in the daytime, and the room is space warm brightly.

The room [about 8.4 quires of Western-style rooms] Sunlight comes in, and a lot of windows are bright space by two lighting. The storing is available as master bedroom with richness, too.

The room [about 6.3 quires of Western-style rooms] There is the big closet to Southeast in the bright Western-style room with the bay window, too.

Kitchen [kitchen] In the kitchen of the wall charge account type, you can utilize space effectively more widely. Abundant storage space is established on the upper kitchen, the lower part, the back.

Bus [bathroom] It is bathroom which can heal one-day fatigue relaxedly. The bathroom ventilation with clothes drying function with the heating function is installed and is useful for a rainy day and night washing, mold measures.

Restroom A washhand stand is established, and it is smooth, and the hand-washing after the use is hygienic, too. As the lower bathroom is provided with a shelf, I can store expendable supplies clearly.

Washing face [washing face room] When both sides of the bowl employ a petty person temporarily, they are convenient in Flat. As there is the window, the sun, the ventilation is good, too.

The Other field [Wood deck] There is Wood deck available spaciously.

The entrance [the entrance] Because of a start of shooting line of flow, it is the design that is hard to be able to see the room, and is easy to secure privacy. As there is the window, the ventilation is good.

The Other field [the entrance] Interlocking grip is set up in front of the entrance and becomes the stylish line of flow from a gate to the entrance.

Parking lot [Parking lot] It is the car space where I can park for two in parallel.

View [view (east side) from 2F] You can see the residential area full of nature.

The appearance [the appearance] There is a lawn in the room open to the south and can feel nature to be while coming to live.

Koyoen Station (Hankyu Kyoto Main Line) (about 720m) A 9-minute walk.

Coop Koyoen (about 470m) A 6-minute walk.

Anchor supermarket Koyoen store (about 730m) A 10-minute walk.

Hankyu Oasis Koyoen store (about 730m) A 10-minute walk.

FamilyMart Koyoen ekimae shop (about 750m) A 10-minute walk.

Royal home center Nishinomiya (about 880m) A 11-minute walk.

Nishinomiya City Koyoen elementary school (about 550m) A 7-minute walk.

Nishinomiya City big shrine Junior High School (about 490m) A 7-minute walk.

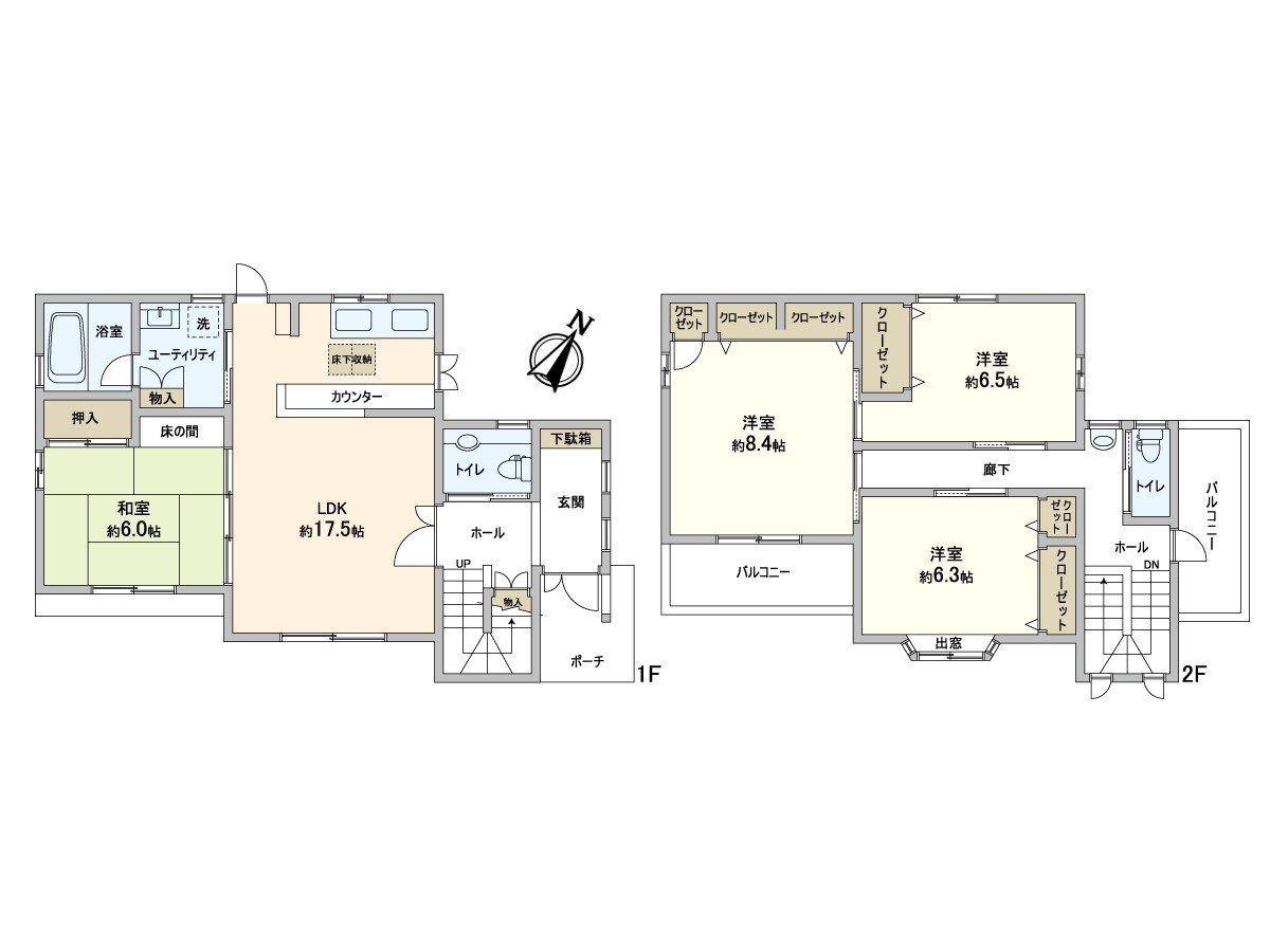
[floor plan] As there are living and the place equipped with a water supply on a 1st part about six quires of all rooms or more in a certain 4LDK, it is the Layout which I live and am easy to do.
> Click for glossary

Glossary

Recommended

Read More Read Less

Surrounding map

Address Kanbara, Nishinomiya-shi, Hyogo > GoogleMap


Inquiry
Inquiry
Inquiry
Inquiry