Our Site uses cookies to improve your experience on our website. For more details, please read Cookie Policy.
By closing this message or starting to navigate on this website, you agree to our use of cookies.
This page is translated using machine translation. Please note that the content may not be 100% accurate.
66,900,000 JPY
Elementary school Ichikawa City Minamigyotoku elementary school 1,300m
Junior high school Ichikawa City Fukuei junior high school 940m
Park Katori Park 200m
Other facilities 1 Don Quijote Gyotoku ekimae shop 910m
Other facilities 2 7-Eleven Kakemama shop 480m
Other facilities 3 Gyotoku post office 170m
-Recommended - of the Properties
▼Location
・A 12-minute walk from Tokyo Metro Tozai Line "Gyotoku" station
・The location that is convenient for commuting, attending school to Central Tokyo
▼Characteristics of the building
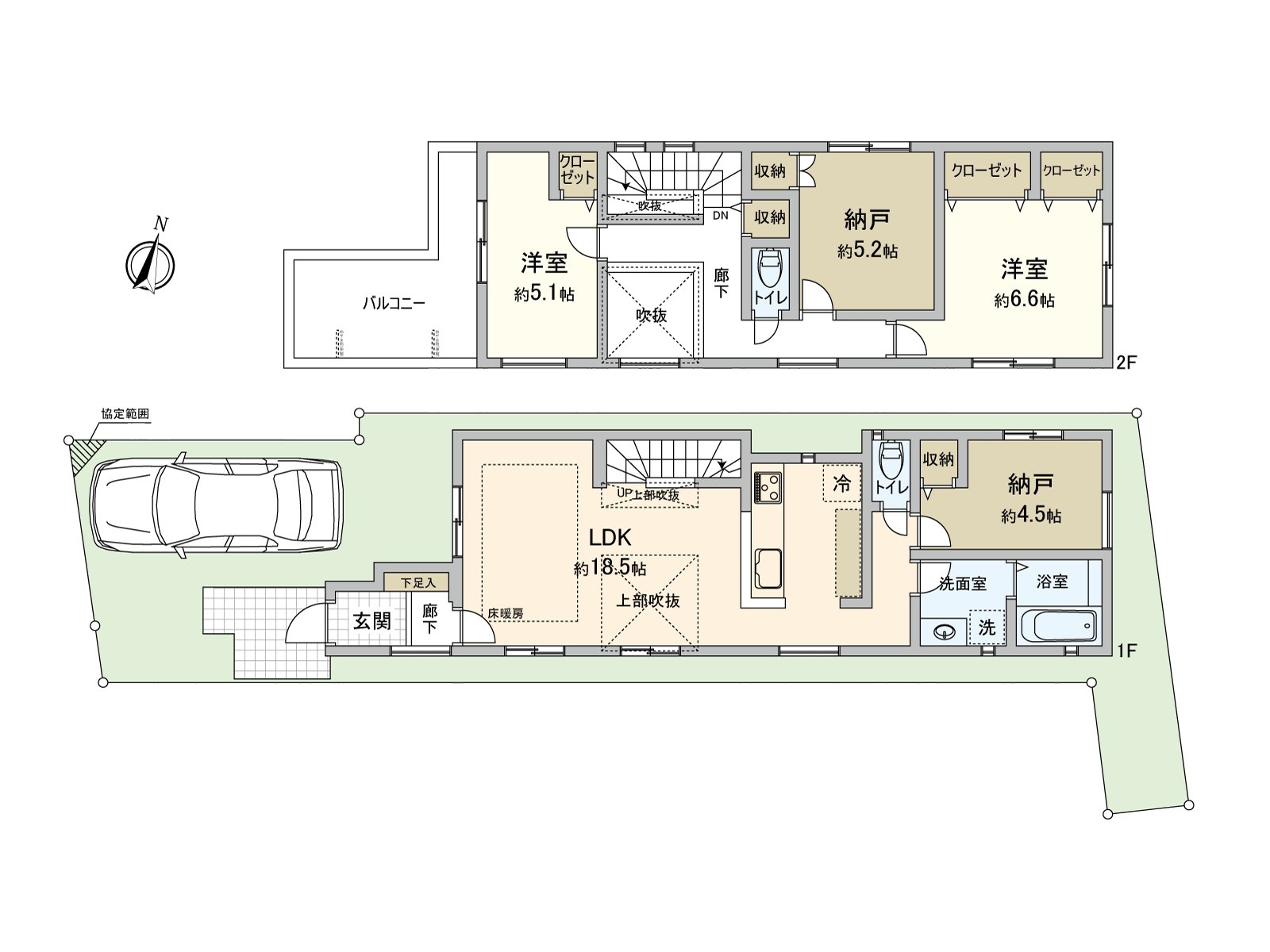
・December, 2025 completion planned 2LDK+2S (storeroom)
・104.19 square meters of Land area (about 31.51 tsubo)
・97.04 square meters of total floor area (about 29.35 tsubo)
・Wood 2 stories (convention)
・Parking space available
▼Characteristics of the room
・About 18.5 quires of LDK which can relax relaxedly
・The island kitchen counter which living can look around
▼Facilities
・It is floor heating in the living room
・Two storing-rich storerooms
▼Surrounding environment
・There is a supermarket, a park, a convenience store, a hospital within the range of a 10-minute walk
■ We help you find a property that meets your needs
For property details or inquiries, please feel free to contact us.
Read More Read Less