54,500,000 日元
小学 川崎市立东柿生小学 320m
中学 川崎市立柿生中学 1720m
超市 业务超市上麻生商店 810m
医院 达磨内科、内窥镜诊所 610m
其他便利设施1 柿生站南口(小田急小田原线) 2120m
其他便利设施2 Lawson·THREE F下麻生商店 390m
其他便利设施3 HAC药品川崎下麻生商店 560m
■交通
━━━━━━・・・・・
○小田急线"柿生"车站公共汽车14分
"东柿生小学"步行6分钟(约440m)
■推荐点数
━━━━━━・・・・・
02026年4月中旬完成计划的新房独栋住宅
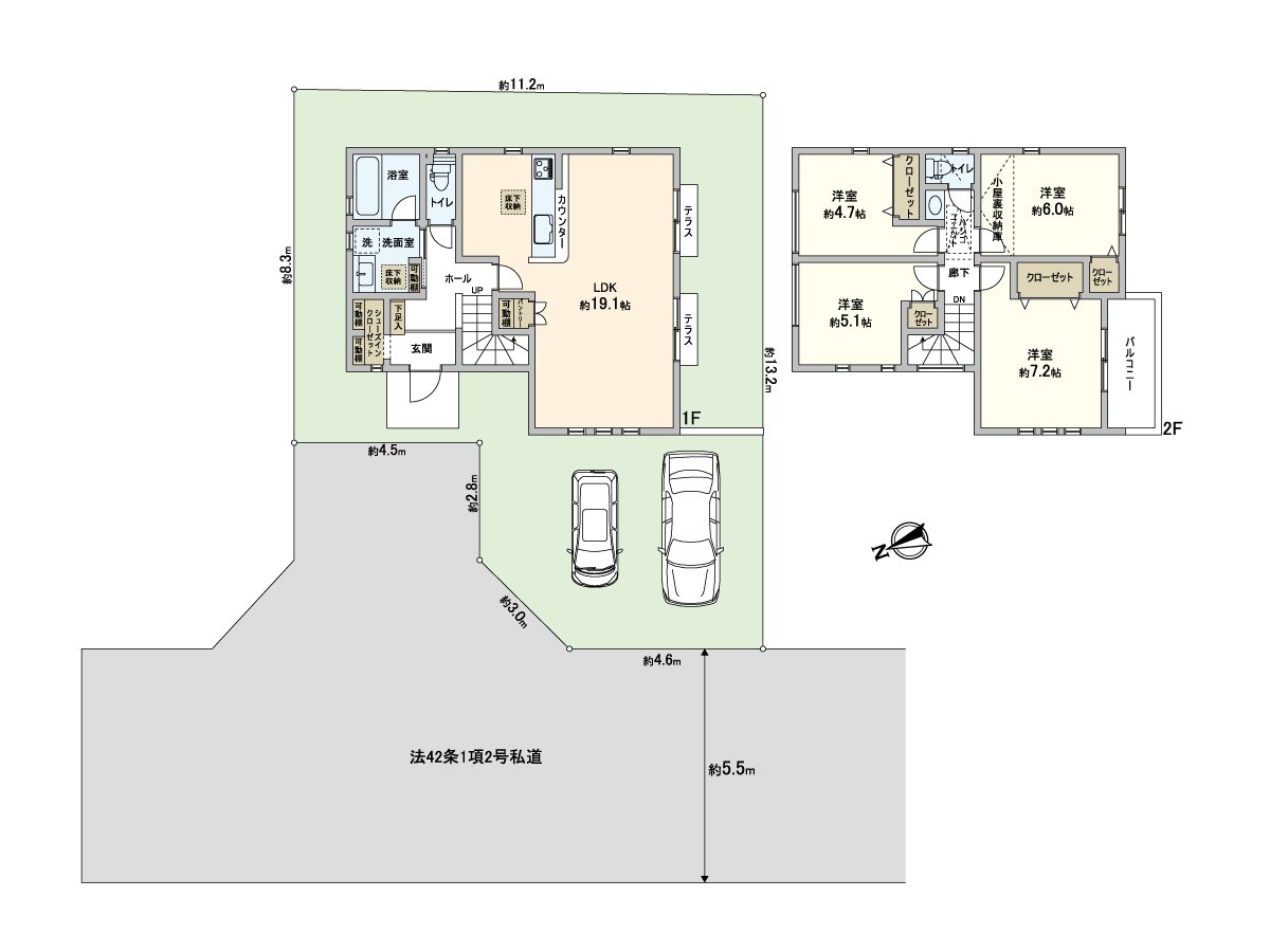
0通风用全居室2面采光明亮地良好的4LDK
0约19.1张塌塌米宽敞的LDK
0与家族的会话兴奋起来的开放式厨房使用
0餐具室·亚麻布搁板等的丰富的收藏
0门口一下子在走入式鞋柜剪,整理。
02楼也有盥洗台
0小学步行10分以內
0绿大量购物设施在步行范围以内,容易生活的居住环境
■周边施设
━━━━━━・・・・・
○东柿生小学:步行4分钟(约320m)
○柿生中学:步行22分钟(约1,720m)
○Lawson THREE F下麻生商店:步行5分钟(约390m)
○HAC药品下麻生商店:步行7分钟(约560m)
○业务超市上麻生商店:步行11分钟(约810m)
○超市三和町田三轮店:步行17分钟(约1,290m)
0川崎东柿生邮局:步行3分钟(约200m)
○达磨内科、内窥镜诊所 :步行8分钟(约610m)
查看评论 收起
地址 神奈川县川崎市麻生区王禅寺东5丁目