49,800,000 日元
小学 八王子市立由井第一小学 530m
中学 八王子市立打越中学 680m
公园 北野天神公园 210m
医院 北野内科诊所 150m
其他便利设施1 全家便利店北野站大街店 330m
其他便利设施2 クリエイトエス・ディー八王子コピオ北野店 410m
其他便利设施3 kopio北野 410m
-房源的推荐焦点-
▼位置
・京王线、高尾线"北野"车站步行6分钟
▼建筑物的特徴
・2026年3月築的新房独栋住宅
・2层楼木造侧线的放心的构造
▼设备
・在绝热性用所有房间复数层玻璃杰出
・组合厨房,浴室换气干燥机
・有TV监视器的内部对讲机
・在换气系统舒适24小时的室内环境
▼房间的特徴
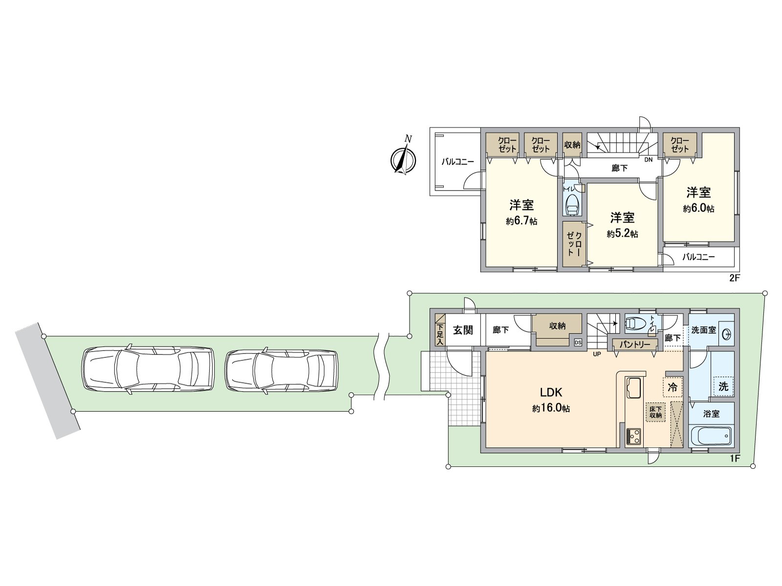
・舒适某一个3LDK,LDK约16张塌塌米
・收纳丰富,并且各西式房间有壁橱
▼周边环境
・超市阿尔卑斯山北野商店约530m(步行7分钟)
・北野天神公园约210m(步行3分钟)
・八王子市立由井第一小学约530m(步行7分钟)
■ 在找想要的家方面给予帮助的━━━━━・・・
房源的详细、需讨论是如有意向,请跟我们联系。
查看评论 收起
地址 东京都八王子市北野町