45,800,000 日元
小学 所泽市立美原小学 1200m
中学 所泽市立美原中学 1370m
公园 北所泽公园 140m
医院 新所泽hiro内科 750m
其他便利设施1 杉药房新所泽商店 390m
其他便利设施2 Lawson所泽花园2丁目商店 540m
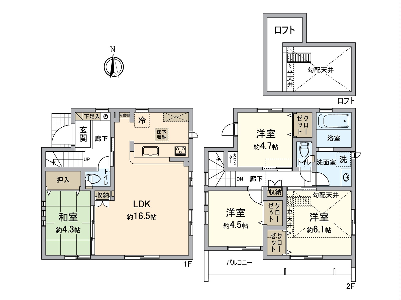
■ 推荐焦点━━━━━━━━━━・・・・・
○ 北×西角地通风良好
○ 备有生活便利设施的居住环境
○ 设置客餐厅和到底能使用的日式房间的4LDK
○ 斜面天花板的开放性的客厅
○ 约16张塌塌米室内装饰映照的宽敞的生活
○ 与家族的会话兴奋起来的开放式厨房
○ 缩短要洗的东西的时间!有内装的洗碗机
○ 用浴室烘干机是雨天,但是轻松洗衣
○ 有地板下边储藏室
○ 有的话便利的有阁楼
○ 来客时附带便利,TV监视器的内部对讲机
○ 有停车场1台分(出自车型的)
■ 从负责人一句话━━━━━━━━━・・・・・
○ 也把周边环境以及周边施设合起来,不仅本房源而且,做向导吧。
○ 买房时的各项费用、月的偿还计划制作资金计划书。
○ 也一共接受移动(重新购买)需讨论。
○ 想要参观的顾客敬请垂询到负责早熟。
查看评论 收起
地址 埼玉县所泽市北所泽町