45,800,000 日元
小学 埼玉市立马神社东小学 2410m
中学 埼玉市立土屋中学 1710m
超市 我的X市场 1030m
公园 宝下一个公园 280m
医院 田中诊所 920m
其他便利设施1 7-Eleven埼玉西游马商店 730m
其他便利设施2 药品SUGI宝来店 1110m
其他便利设施3 指扇站前邮局 860m
■ 推荐焦点━━━━━━━━━━━━━━━・・・・・
○ JR川越线"指扇"车站步行12分钟
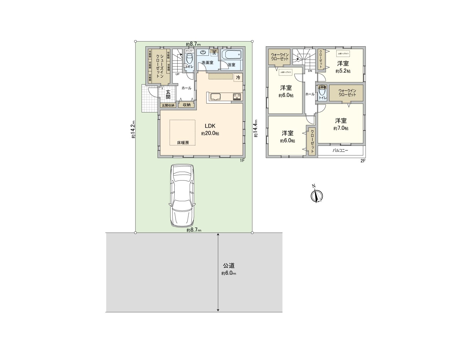
○ 2026年1月完成的新房独栋住宅4LDK
○ 在西南一侧道路,阳光良好
○ 约20.0张塌塌米宽敞的LDK
○ 客厅能瞭望的开放式厨房
○ 全居室存储空间有
○ 家务流迹线被想的容易使用的房型
○ 收纳丰富(步入式衣帽间,走入式鞋柜)
○ 停车位有(依靠车型)
■ 设备・设计━━━━━━━━━━━━━━━・・・・・
○ 组合厨房
○ 内装洗碗机
○ 2个地方厕所
○ 淋浴厕所
○ 洗发水化妆台
○ 浴室暖气烘干机
○ 地板暖气(客餐厅部分一部分)
○ 附带彩色电视监视器的内部对讲机
○ 24小时换气系统
○ 电动卷帘门
○ Low-E复数层玻璃
■ 在找想要的家方面给予帮助的━━━━━・・・
房源的详细、需讨论是如有意向,请跟我们联系。
查看评论 收起
地址 埼玉县埼玉市西区大字西游马