埼玉市西区大字土屋

独栋住宅

客厅 ※图片是CG在在CG在原来再现室内照片、房型图的"空房翻新形象"合成家具、供给品的配置例的东西,并且价格没包括翻新工程费用以及家具,和用现状的递交成为。

外观 JR川越线"指扇站"步行15分钟的位置

客厅 客厅

客厅 ※是在CG在原来再现室内照片、户型平面图的"空房翻新形象",并且翻新工程费用价格没包括图片,是用现状的递交。

客厅 客厅

厨房 开放式厨房

洗脸 洗脸室

厕所 1楼厕所

公共汽车 公共汽车

厕所 2楼厕所

西式房间 约6.1张塌塌米西式房间

西式房间 7.5张塌塌米西式房间

西式房间 7.5张塌塌米西式房间

客厅 客厅

日式房间 日式房间

门口 门口

停车场 停车位2台有(依靠车型)

外观 外观

含有前面道路的外观 约6.0m的东南一侧道路

外观 外观

外观 约38.72坪的整形地

外观 外观

外观 外观

外观 外观

外观 外观

外观 外观

Coop指扇商店(约570m)

全家便利店大宫指扇商店(约400m)

土屋公园(约430m)

大宫Plaza邮局(约820m)

埼玉市立马神社东小学(约1130m)

埼玉市立土屋中学(约250m)

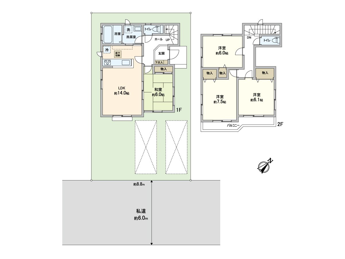
房型图
> 用语集

用语集

推荐

查看评论 收起

周边地图

地址 埼玉县埼玉市西区大字土屋


咨询方式
咨询方式
咨询方式
咨询方式