49,900,000 日元
小学 松户市立马桥北小学 160m
中学 松户市立新松户南中学 20m
公园 新松户南公园 70m
医院 森内科诊所 550m
其他便利设施1 新松户站(JR东日本武藏野线)(JR东日本常磐线) 1410m
其他便利设施2 马桥站(JR东日本常磐线) 1650m
其他便利设施3 Lawson新松户商店 550m
■推荐焦点━━━━━━━━━━━━━━━・・・・・
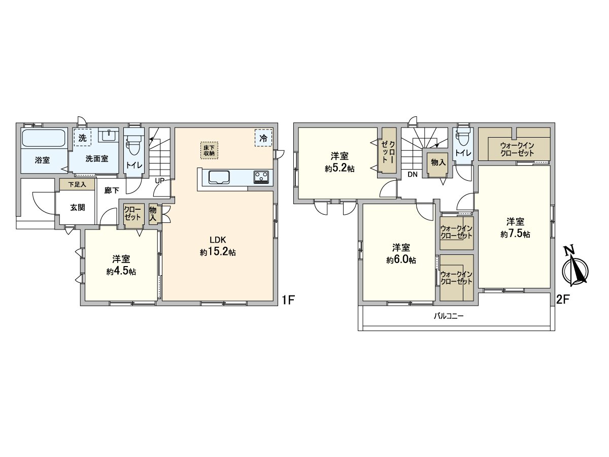
0 2025年12月完成的新房独栋住宅
0 土地面积:102.58平米(约31.03坪)
0 建筑面积:97.71平米(约29.55坪)的4LDK
0 第一类低层住宅专用区的清静的住宅区
○ 光照在南道路良好
0 与家族的对话有弹性的开放式厨房
0 WIC、地板下边收纳等的充实的存储空间
0 有来客时便利的TV监视器的内部对讲机
○ 能停2台
■LIFE信息━━━━━━━━━━━━━━━・・・・・
0 AEON食物风格新松户商店约790m
0 Lawson新松户商店 约550m
0 Create SD新松户南商店约400m
0 森内科诊所 约550m
0 新松户南邮局 约40m
0 新松户南公园 约70m
0 松户市立马桥北小学 约160m
0 松户市立新松户南中学 约20m
查看评论 收起
地址 千叶县松户市新松户南2丁目