48,900,000 日元
小学 鹤园小学 990m
中学 谷口中学 1680m
超市 MEGA唐·吉柯德上鹤间商店 380m
公园 上鹤间本町9丁目公园 320m
医院 上鹤间内科诊所 660m
其他便利设施1 东林间站(小田急江之岛线) 1550m
其他便利设施2 月见野站(东急电铁田园都市线) 1700m
其他便利设施3 クリエイトエス・ディー相模原上鶴間店 760m
■ 推荐焦点━━━━━━━━━━━━━・・・・・
○ 小田急江之岛线"东林"之间的车站步行20分钟
○ 东急田园都市线"Tsukimino"车站步行22分钟
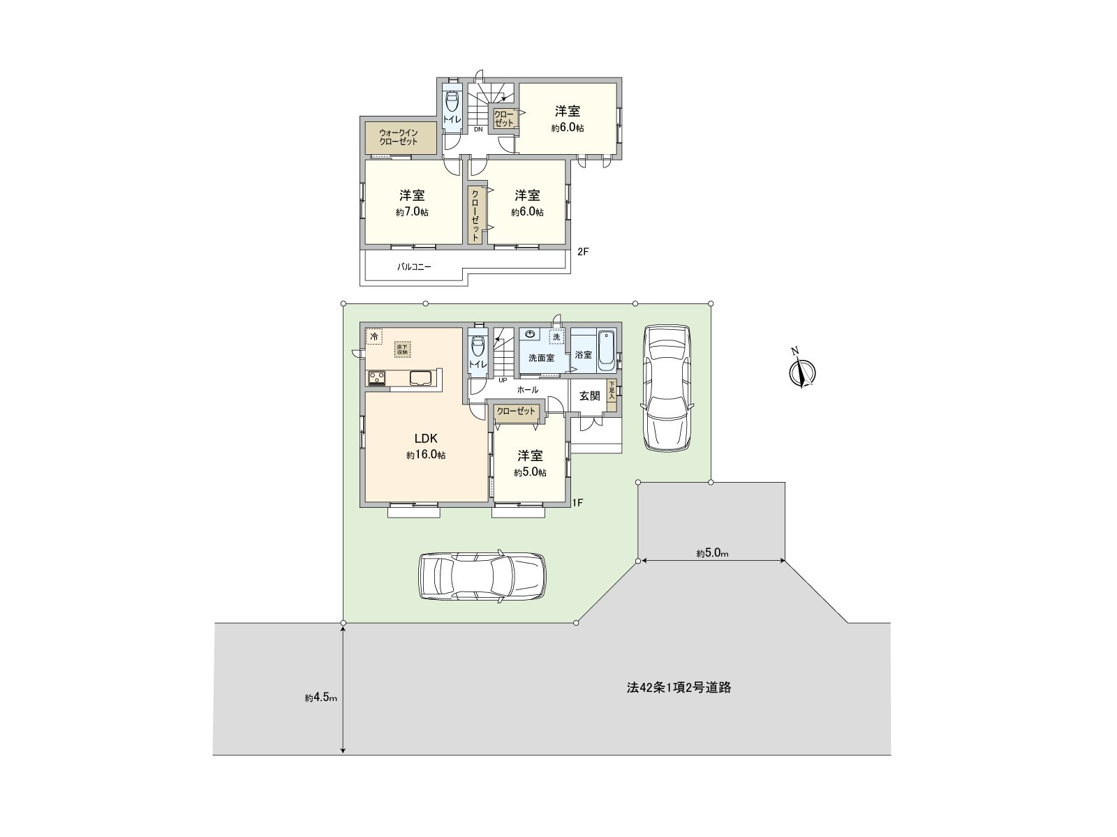
○ 阳光为所有房间2面采光,南西良好
○ 停车位2台分(出自车型的)
■ 设备・设计━━━━━━━━━━━━━━━・・・・・
○ 到底能和LDK使用约5张塌塌米西式房间。变成合计超过20张塌塌米空间
○ 厨房是一边烹调,一边会话兴奋起来的开放式,地板预先收纳有
○ 浴室烘干机
○ 步入式衣帽间
○ 附带TV监视器的内部对讲机
○ 如果在FLAT层,浴室有扶手无障碍式样
■ 在请坐车对三井Rehouse相模大野Center到店里来的时候━━━━━━━━━━━━━━━・・・・・
在bono相模大野里有[时代相模原市营相模大野站西侧停车场]或者沿着行幸路有[时代相模原市营相模大野立体停车场]请利用。(为被入库的时间确认,到店铺麻烦您拿被发行的停车券)
在回来[停车服务票]的时候,给。
查看评论 收起
地址 神奈川县相模原市南区上鹤间本町9丁目