新价格 相模台6丁目新房独栋住宅C号栋

独栋住宅

外观 [外观]小田急线"小田急相模原"车站步行26分钟。从小田原线"相武台前"车站也有公共汽车班次。

客厅 [LDK:约19张塌塌米]

客厅 [LDK:约19张塌塌米]

厨房 [厨房]

厨房 [厨房:炉子]

厨房 [厨房:洗涤槽]

公共汽车 [浴室]

洗脸 [洗脸室]

洗脸 [盥洗台]

厕所 [1F厕所]为有也能无多心而在来客的情况下使用2个地方洗手间。

厕所 [2F厕所]是打扫的容易做的简单的装修。

室内 [西式房间:约7.0张塌塌米]

收纳 [收纳/西式房间:约7.0张塌塌米]

室内 [西式房间:约6.0张塌塌米]

阳台 [阳台]

室内 [西式房间:约5.2张塌塌米]

室内 [储藏室:约5.2张塌塌米]

门口 [鞋柜]

含有前面道路的外观 [前面道路]

客厅 [LDK:约19张塌塌米]

客厅 [LDK:约19张塌塌米]

厨房 [厨房]

室内 [西式房间:约7.0张塌塌米]

室内 [西式房间:约7.0张塌塌米]

室内 [西式房间:约7.0张塌塌米]

室内 [西式房间:约6.0张塌塌米]

室内 [西式房间:约6.0张塌塌米]

室内 [西式房间:约6.0张塌塌米]

收纳 [收纳/西式房间:约6.0张塌塌米]

室内 [西式房间:约5.2张塌塌米]

室内 [西式房间:约5.2张塌塌米]

室内 [西式房间:约5.2张塌塌米]

收纳 [收纳/西式房间:约5.2张塌塌米]

室内 [储藏室:约5.2张塌塌米]

室内 [储藏室:约5.2张塌塌米]

收纳 [收纳/储藏室:约5.2张塌塌米]

阳台 [阳台]

收纳 [走廊收纳]为收藏平常不想出示的日用品也把打扫用具视为好东西。

收纳 [门口]

含有前面道路的外观 [前面道路]

停车场 [停车场]1辆车份的停车位(出自车型的)

外观 [外观照片]

外观 [外观照片]

小田急相模原站(小田急小田原线)(约2050m)

相模原市立嫩草小学(约450m)

相模原市立嫩草中学(约390m)

TOP相模台商店(约310m)

嫩草公园(约320m)

北村家庭诊所(约410m)

7-Eleven相模原相模台6丁目商店(约150m)

Create S·D相模台商店(约850m)

相模原双叶邮局(约1070m)

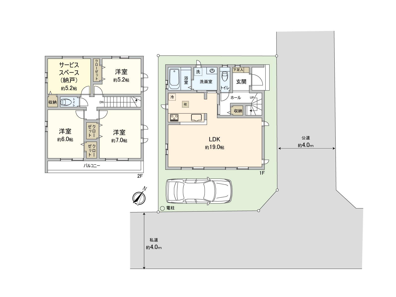
[房型图]
> 用语集

用语集

推荐

查看评论 收起

周边地图

地址 神奈川县相模原市南区相模台6丁目


咨询方式
咨询方式
咨询方式
咨询方式