24,800,000 日元
小学 横滨市立原小学 1170m
中学 横滨市立田野中间学校 1060m
超市 LIFE希望之丘商店 880m
公园 阿久和零钱第3公园 80m
医院 飞田医院 550m
其他便利设施1 希望之丘站(相铁本线) 1150m
其他便利设施2 セブンイレブン横浜阿久和東1丁目店 600m
其他便利设施3 HAC药品希望之丘SC店 830m
■ 推荐焦点━━━━━━━━━━━━━・・・・・
○ 相铁本线"希望之丘"车站步行15分钟
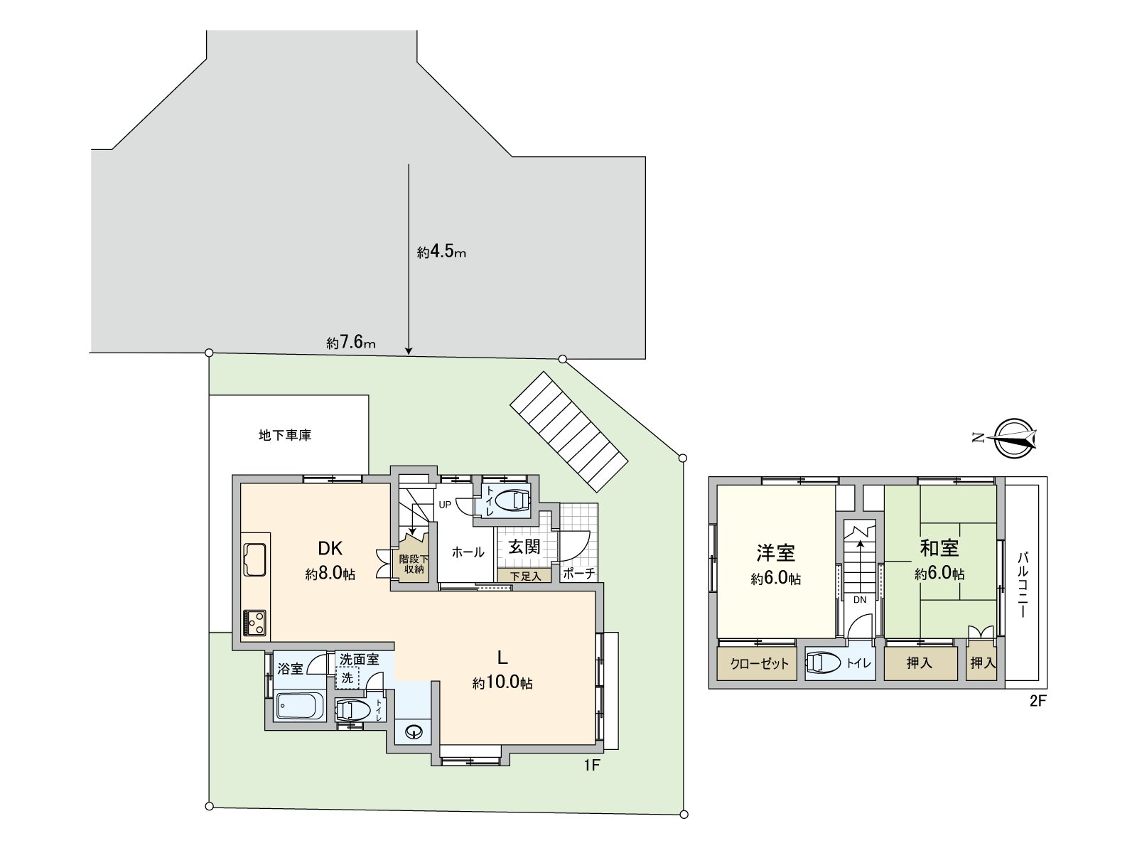
○ 第一类低层住宅专用区的清静的住宅区
○ 超过6张塌塌米全居室
○ 关于所有房间2面采光,亮的阳光在室内插进去
■ 设备・设计━━━━━━━━━━━━━━━・・・・・
○ 在全居室丰富的存储空间
○ 保护重要的心爱的汽车不受风雨侵害的内装车库
■ 相铁线~都心直通项目
・JR直通线(2019年11月30日开通)
连接武藏小杉,目黑,大崎,涩谷,新宿
・ 东急直通线(2023年3月18日开通)
连接新横滨,新纲岛,日吉
变得容易举行对都心的交通了
■ 从负责人一句话━━━━━━━━━━━━・・・・・
是阿久和东2丁目的独栋住宅的介绍。
在周围,公园分散地存在,是绿大量宁静的气氛。
因为凑齐房源的详细的资料所以,
在如有希望用电子邮件发出来的形式或者免费热线
请和三井Rehouse二俣川Center联络。
发自心里等候来自各位的咨询方式。
查看评论 收起
地址 神奈川县横滨市濑谷区阿久和东2丁目