藤丘2丁目独栋住宅

独栋住宅 开放参观的房源

外观 [外观]关于面向南道路的位置,光照良好

客厅 [约17.6张塌塌米LDK/]在客餐厅,地板暖气有 ※销售价格不包括家具、供给品

客厅 [约17.6张塌塌米LDK/]有前面道路和高低差别,光照良好 ※销售价格不包括家具、供给品

客厅 [约17.6张塌塌米LDK/]※销售价格不包括家具、供给品

客厅 [厨房餐厅]※销售价格不包括家具、供给品

厨房 [厨房]开放式的组合厨房 ※销售价格不包括家具、供给品  

厨房 [厨房]在厨房,有内装洗碗机、净水功能的栓有 ※销售价格不包括家具、供给品

厨房 [厨房]在厨房,有对太太好的橱 ※销售价格不包括家具、供给品

公共汽车 [浴室]1坪类型的整体卫浴 ※销售价格不包括供给品

公共汽车 [浴室]浴室换气干燥暖气时机有 ※销售价格不包括供给品

厕所 [厕所]1楼厕所,INAX的淋浴厕所

厕所 [厕所]2楼厕所,INAX的淋浴厕所

日式房间 [约4.8张塌塌米日式房间/]※销售价格不包括家具、供给品

日式房间 [约4.8张塌塌米日式房间/]日式房间也是光照良好度 ※销售价格不包括家具、供给品

卧室 [约8张塌塌米主卧室/]※销售价格不包括家具、供给品

卧室 [约8张塌塌米主卧室/]是在斜面天花板亮的西式房间 ※销售价格不包括家具、供给品

卧室 [约8张塌塌米主卧室/]※销售价格不包括家具、供给品

阳台 [阳台]主卧室一侧的阳台 ※销售价格不包括家具、供给品

西式房间 [约6.3张塌塌米西式房间/]※销售价格不包括家具、供给品

西式房间 [约6.3张塌塌米西式房间/]是在斜面天花板亮的西式房间 ※销售价格不包括家具、供给品

阳台 [阳台]西式房间一侧的阳台 

风景 [风景]来自西式房间一侧的阳台的风景

门口 [门口]有鞋柜,鞋櫃的门口 ※销售价格不包括供给品

门口 [门口]已经环保克拉设置 ※销售价格不包括供给品

外观 [外观]有地下车库 ※销售价格不包括车

含有前面道路的外观 [含有前面道路的外观]前面道路幅员约6m

横滨市立藤丘小学(约920m)

横滨市立谷本中学(约1210m)

东急商店藤丘商店(约550m)

全家便利店藤丘站南口店(约550m)

昭和大学藤丘医院(约640m)

藤丘公园(约410m)

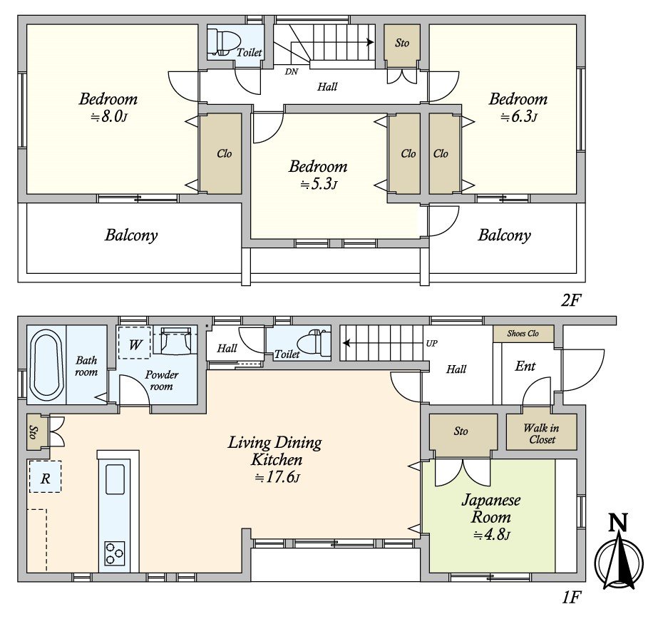
[房型图]
> 用语集

用语集

推荐

查看评论 收起

周边地图

地址 神奈川县横滨市青叶区藤丘2丁目


咨询方式 开放参观的房源
开放参观的房源 咨询方式
咨询方式