藤泽市片濑3丁目付店铺住宅

独栋住宅 翻新&改装

客厅 [藤泽市片濑3丁目付店铺住宅]步行2分钟,并且能到江之岛电铁线"江之岛"车站到湘南单轨电车"湘南江之岛"使用步行2分钟的等,3沿线3车站。超市以及便利店是步行5分钟的范围以内和容易渡过的居住环境。

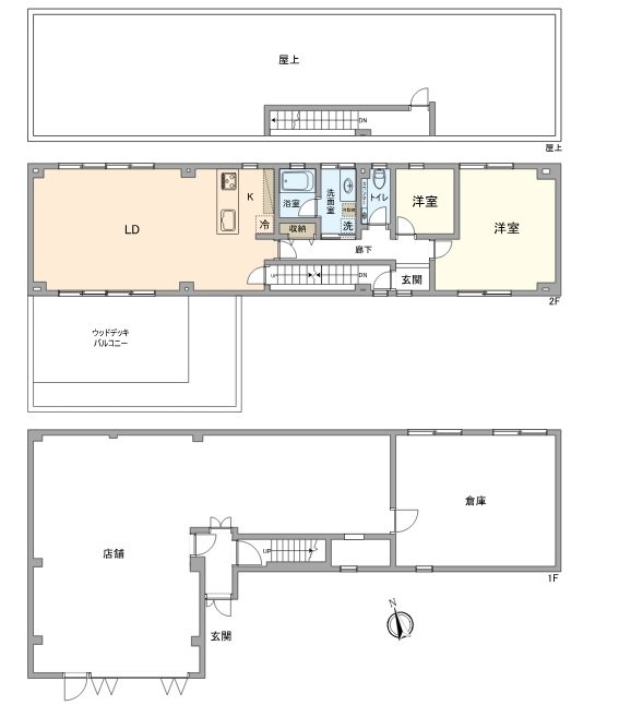
客厅 [LDK]LDK被对2楼部分设定。难以在意来自外面的视线,家族一起,并且舒适地可以度过舒适的一时。

厨房 [厨房]因为能从厨房瞭望客厅·餐厅一边感到家族的样子所以,一边能做家务。

阳台 [阳台]为在洗的衣物的外面晒而也有用明亮地是开放性的宽大的型阳台。关于南西,好像洗的衣物好好干。

其他 [屋顶]是来自屋顶的风景。大的建筑物在前面感到哭的蓝色的空的扩大。晴天时,能看富士山。

客厅 [LDK]是在家族各位舒适地可以度过的客厅·餐厅。关于2面采光,阳光良好。

其他 [店铺部分]被在1楼配的舒适是某一个面积的店铺部分。仓库被在内部设立。

其他 [店铺部分]因为正面临南侧的停车场所以阳光插进去。在店铺里,能进出停车场和1楼的门口内。

外观 [外观]因为居住空白正和店铺部分在层分开所以私人的空间的分离实现。

厨房 [厨房]厨房的背面正设有碗橱。餐具一下子剪,好像整理。

洗脸 [洗脸室]在化妆品或者小东西类具有有感觉清醒和能收藏的三面镜的盥洗台。

公共汽车 [浴室]是能渡过放松的公共汽车时间的温暖的浴室。具有舒适地可以使用的浴室换气干燥。

厕所 [厕所]有干净的感的厕所正设有独立的洗手器。作为陈列架,也可以灵活使用。

门口 [2楼门口、走廊]洗脸室和厕所被在走廊安置。因为关LDK的门所以可能被门口问室内的样子。

室内 [东面西式房间]大的床容易安置的面积的西式房间。也作为夫妇以及家族的卧室可以灵活使用。

室内 [北侧西式房间]在回家流迹线之前的西式房间。因为从家族聚集的客厅有距离所以是容易集中于远隔工作以及学习的居室。

房型图(平面图) [用地配置图]

停车场 [南侧停车场]面向店铺的用地里面的停车场的样子。能停复数的台阶(出自车型的)。请和周边环境一共参观当地。

门口 [1楼门口、楼梯]能从1楼的门口直接,居住空间前往。因为关门所以居住空间变得不全部看得见。

室内 [西式房间]

门口 [2楼门口]

阳台 [阳台]

洗脸 [洗脸室]

外观 [外观照片]

外观 [外观照片]

客厅 [LDK]

客厅 [LDK]

阳台 [阳台]

阳台 [阳台]

yamaka江之岛商店(约360m)

Lawson片濑海岸1丁目商店(约180m)

HAC药品江之岛商店(约370m)

洲鼻子南公园(约330m)

藤泽市立片濑小学(约1000m)

藤泽市立片濑中学(约1660m)

湘南江之岛站(湘南单轨电车)(约100m)

江之岛站北侧(江岛电铁)(约160m)

片濑江之岛站(小田急江之岛线)(约740m)

是1楼设有店铺部分的家。在2楼部分的居住空间,已经2023年7月翻新。面积有能力承担,也作为家务以及在家的工作的改换心情的地方可以灵活使用阳台。
> 用语集

用语集

推荐

查看评论 收起

周边地图

地址 神奈川县藤泽市片濑3丁目


咨询方式
咨询方式
咨询方式
咨询方式