95,900,000 日元
小学 鹄沼小学 1190m
中学 藤泽市立鹄沼中学 550m
超市 Yaoko藤泽片濑商店 850m
公园 樱小路公园 270m
医院 湘南齐藤诊所 610m
其他便利设施1 Lawson藤泽本鹄沼商店 750m
其他便利设施2 7-ELEVEn藤泽片濑商店 830m
其他便利设施3 Create S·D藤泽片濑商店 810m
-房源的推荐焦点-
▼位置
・JR东海道本线"藤泽"车站步行17分钟
小田急电铁江之岛线"本鹄沼"车站步行9分钟
江岛电铁"石上"车站步行8分钟
・第一类低层住宅专用区的清静的住宅区
▼建筑物的特徴
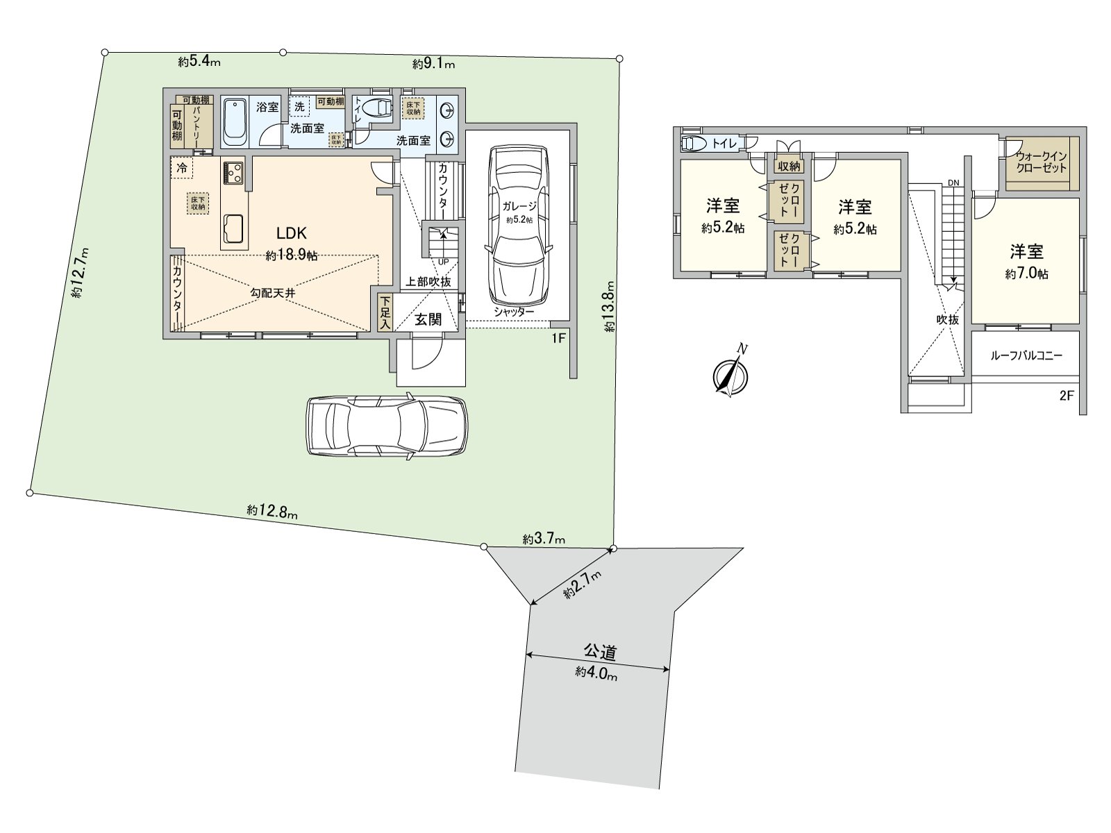
・可以停车2台的新房独栋住宅(出自车型的)
(内装车库,汽车空间各1台分)
・节能性能用ZEH水平高的住宅
▼房间的特徴
・约18.9张塌塌米宽敞的LDK
・斜面天花板的开放性的客厅
・容易把打扫换成的全室木地板式样
▼设备
・与家族的会话兴奋起来的开放式厨房
・缩短要洗的东西的时间餐具冲洗烘干机
・从属于餐具室
・浴室换气干燥暖气时机
・双盆型的盥洗台
・能收藏大型的行李的WIC
・开锁顺利的非接触键
・智能快递柜的
▼周边环境
・yamaka本鹄沼商店约780m(步行10分钟)
・Lawson藤泽本鹄沼商店约750m(步行10分钟)
・樱小路公园约270m(步行4分钟)
・鹄沼中学约550m(步行7分钟)
■ 在找想要的家方面给予帮助的━━━━・・・
房源的详细、需讨论是如有意向,请跟我们联系。
查看评论 收起
地址 神奈川县藤泽市鹄沼樱冈1丁目